Lokal na sprzedaż, woj. mazowieckie / dodano: 16.09.2025
Ananasowa, mazowieckie, Warszawa, Mokotów
Cena: 1 294 000 PLN  (23 107,14 PLN/m²)
Powierzchnia
56 m²
Piętro
parter
Numer oferty
gratka-44046131
Data aktualizacji
2025-12-04 02:10:38
Opis:

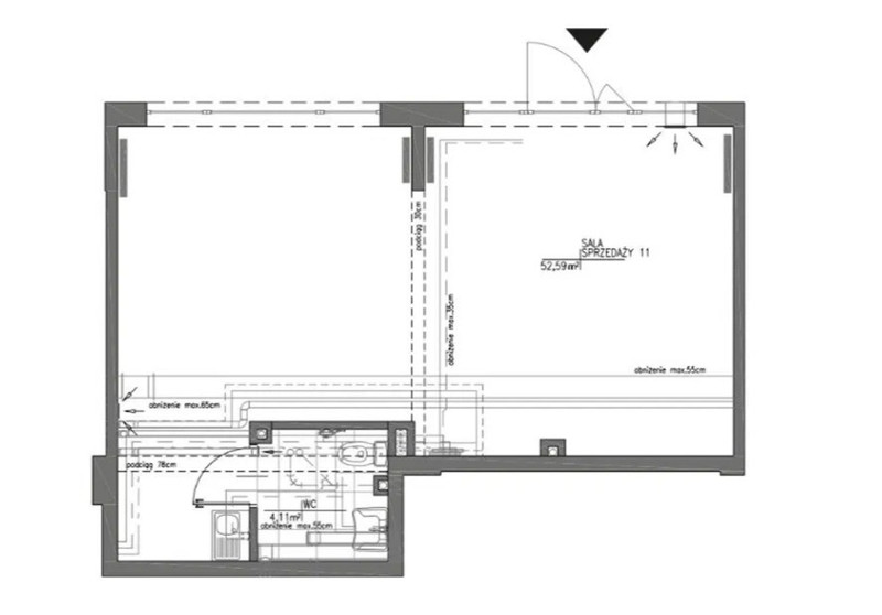
BEZPOŚREDNIO, uniwersalny, urządzony lokal 56m2 z najemcą na parterze z dużymi witrynami w nowoczesnym apartamentowcu na Mokotowie, łatwy dojazd, dużo zatok do parkowania.

LOKALIZACJA I STANDARD: Warszawa Mokotów Wiślany ul. Ananasowa 31 lokal U-11

Lokal w pełni wykończony do natychmiastowego użytkowania w wysokim standardzie,

  • klimatyzacja LG, wentylacja,
  • wydzielony gabinet,
  • toaleta (WC+umywalka), mini- kuchnia.
  • dodatkowo zasilania na 2 umywalki
  • do wykończenia użyto materiałów wysokiej jakości, z dużą dbałością o detale,
  • duże witryny, wysokość lokalu 3,0m
  • agencja ochrony 7/24, system kamer rozmieszczonych na całym budynku.
  • łatwy dojazd z mostu Siekierkowskiego, bliski dojazd do ul. Czerniakowskiej, Witosa, blisko do centrum Warszawy.
  • łatwe parkowanie na ulicy, duża ilość zatok.
  • 90 bezpłatnych miejsc na zamkniętym parkingu zewnętrznym bez ograniczeń.

PRZEZNACZENIE:

Lokal uniwersalny przeznaczony na każdy rodzaj działalności usługowo-handlowej typu: biuro księgowe, firma, salon urody, sklep, kawiarnia.

CENA LOKALU- cena 1 294 000-zł, dodatkowo miejsce postojowe w garażu 69 000,-,

Zapraszamy do kontaktu codziennie w godz. 9.00-20.00.

Chętnie zaprezentujemy lokal na spotkaniu i odpowiemy na wszystkie pytania.

Opis oferty może podlegać aktualizacji, ma charakter informacyjny i nie stanowi oferty określonej w art. 66 i następnych Kodeksu Cywilnego.

Adam
Zadzwoń do oferenta
Zadzwoń do oferenta: +48 602 433 228
Ogłoszeniodawca nie zgadza się na kontakt agencji nieruchomości.
Powiedz, że znalazłaś/eś ofertę na Bezposrednie.com. Dziękujemy.
Wyślij wiadomość do oferenta
Wyślij wiadomość do oferenta

Zgadzam się też na otrzymanie:

reklama