Lokal do wynajęcia, woj. kujawsko-pomorskie / dodano: 18.03.2026
Marszałka Ferdynanda Focha, kujawsko-pomorskie, Bydgoszcz, Centrum
Cena: 2300 PLN  (56,10 PLN/m²)
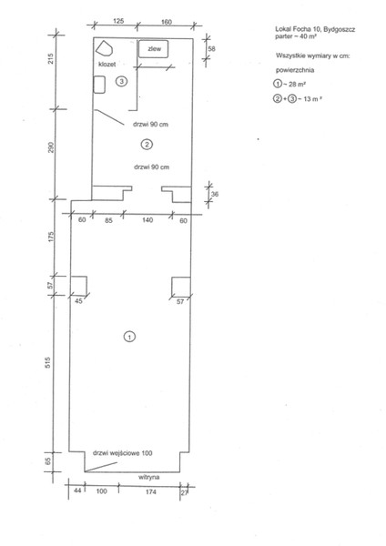
Powierzchnia
41 m²
Liczba pomieszczeń
2
Piętro
parter
Typ domu
inny
Numer oferty
gratka-46333371
Data aktualizacji
2026-04-02 02:17:11
Opis:

Oferuję do wynajęcia lokal na usługi, sklep lub inną działalność do uzgodnienia. Położony na ulicy Focha, ok. 50 metrów od skrzyżowania z ulicą Gdańską.

Obok inne sklepy, punkty handlowe, gastronomiczne i usługowe.

Lokal posiada witrynę i wejście bezpośrednio z ulicy do sali sprzedaży w części frontowej.

W głębi zaplecze kuchenne i toaleta. Powierzchnia około 41 m2. Stan bardzo dobry, do uzgodnienia możliwość aranżacji wnętrza zgodnie z wymaganiami nowego Najemcy.

Centralne ogrzewanie elektryczne, wydajne pełna automatyka. W lokalu jest również zainstalowana w 2024 klimatyzacja na pilota, z możliwością zarówno chłodzenia jak i ogrzewania.


Front kamienicy reprezentacyjny po kapitalnym remoncie elewacji.

Doskonała lokalizacja, duże natężenie ruchu pieszego, naprzeciwko w pobliżu sklepu przystanki komunikacji miejskiej, obok inne sklepy.


Lokal dostępny od20-03-2026

Bezpośrednio
Zadzwoń do oferenta
Zadzwoń do oferenta: +48 515 634 169
Ogłoszeniodawca nie zgadza się na kontakt agencji nieruchomości.
Powiedz, że znalazłaś/eś ofertę na Bezposrednie.com. Dziękujemy.
Wyślij wiadomość do oferenta
Wyślij wiadomość do oferenta

Zgadzam się też na otrzymanie:

reklama