Lokal do wynajęcia, woj. Polska / dodano: 08.09.2025
3 Maja, warmińsko-mazurskie, elbląski, Pasłęk, Pasłęk
Cena: 5000 PLN  (36,23 PLN/m²)
Powierzchnia
138 m²
Piętro
parter
Prąd
Tak
Siła
Tak
Woda
Tak
Numer oferty
gratka-43956945
Data aktualizacji
2026-01-29 02:02:51
Opis:

Posiadam lokal na wynajem w bardzo dobrej lokalizacji.


Informacje o lokalu:

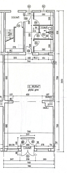
Całkowita powierzchnia lokalu wraz z zapleczem to 138m2, szczegóły na załączonym schemacie.

Okna oraz drzwi antywłamaniowe.

Do lokalu przynależą miejsca parkingowe.


Lokalizacja:

Lokal położony przy ulicy 3go Maja, w bezpośrednim sąsiedztwie znajdują się inne lokale usługowe, sklepy oraz miejsca parkingowe, co gwarantuje stały przepływ potencjalnych klientów.


Dostępność:

Lokal dostępny od zaraz


Koszt wynajmu:

Koszt wynajmu to 5.000 zł


Zapraszam do kontaktu

691 999 379

Ela
Zadzwoń do oferenta
Zadzwoń do oferenta: +48 691 999 379
Ogłoszeniodawca nie zgadza się na kontakt agencji nieruchomości.
Powiedz, że znalazłaś/eś ofertę na Bezposrednie.com. Dziękujemy.
Wyślij wiadomość do oferenta
Wyślij wiadomość do oferenta

Zgadzam się też na otrzymanie:

reklama