Lokal do wynajęcia, woj. Polska / dodano: 23.01.2026
Rynek, wielkopolskie, szamotulski, Szamotuły, Szamotuły
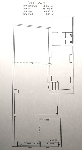
Cena: 10 500 PLN  (41,02 PLN/m²)
Powierzchnia
256 m²
Numer oferty
gratka-45825851
Data aktualizacji
2026-02-07 02:03:32
Opis:

Duży sklep w centrum Szamotuł (ul.Rynek), duża wystawa. Pomieszczenie główne to ok.187 m.kw, na poziomie parteru, a zaplecze, ok. 69 m.kw., na poziomie ok. 1 m wyżej. Dostęp do lokalu możliwy także przez drzwi od strony podwórza (od ul. Kapłańskiej). Tam też, w odległości ok. 100 m. znajdują się kościół oraz szkoła podstawowa.

Ogrzewanie: klimatyzatory lub nagrzewnica gazowa. Możliwe także inne wykorzystanie lokalu, np. na usługi lub gastronomię. Cena obejmuje czynsz najmu (wynajem prywatny). Opłaty licznikowe (prąd, gaz, woda, odpady) obciążają najemcę bezpośrednio, na podstawie umów z usługodawcami.

Okres wypowiedzenia i kaucja są 3-miesięczne. W razie potrzeby istnieje możliwość wynajęcia w tym budynku dwóch mieszkań oraz części budynku, gdzie prowadzona była szwalnia.

Jan
Zadzwoń do oferenta
Zadzwoń do oferenta: +48 601 444 654
Ogłoszeniodawca nie zgadza się na kontakt agencji nieruchomości.
Powiedz, że znalazłaś/eś ofertę na Bezposrednie.com. Dziękujemy.
Wyślij wiadomość do oferenta
Wyślij wiadomość do oferenta

Zgadzam się też na otrzymanie:

reklama