Mieszkanie na sprzedaż, woj. mazowieckie / dodano: 13.02.2026
Oczary, mazowieckie, Warszawa, Białołęka, Tarchomin
Cena: 859 000 PLN  (17 895,83 PLN/m²)
Powierzchnia mieszkalna
48 m²
Czynsz dla adm.
900 PLN
Liczba pokoi
2
Piętro
parter
Liczba pięter
2
Rok budowy
2011
Typ domu
inny
Meble
Tak
Winda
Tak
Domofon
Tak
Internet
Tak
Prąd
Tak
Woda
Tak
Recepcja
Tak
Numer oferty
gratka-46087893
Data aktualizacji
2026-03-11 02:08:36
Opis:

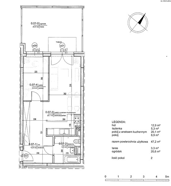
Na sprzedaż 2-pokojowe mieszkanie 48 m² z prywatnym ogródkiem 21 m², miejscem parkingowym w garażu podziemnym oraz windą, położone w kameralnym, 2-piętrowym budynku z 2011 roku w zielonej części Tarchomina.

Niska zabudowa, otoczenie domów jednorodzinnych oraz zadbane części wspólne tworzą spokojne i uporządkowane środowisko do życia, rzadko spotykane w tej części Tarchomina.

Lokal prezentuje odnowiony standard wykończenia i jest gotowy do zamieszkania, bez konieczności ponoszenia dodatkowych nakładów finansowych.

To propozycja dla osób, które chcą mieszkać komfortowo w spokojnym otoczeniu, a jednocześnie mieć pełną infrastrukturę i wygodną komunikację w zasięgu kilku minut.


Najważniejsze informacje

  • Powierzchnia mieszkania: 48 m²
  • Taras + prywatny ogródek: ok. 21 m²
  • Piętro: parter (wygodny dostęp, bez schodów)
  • Budynek: 2 piętra, rok 2011 (kameralny charakter)
  • Garaż podziemny: 2 kondygnacje, winda z poziomu garażu (rozwiązanie rzadkie w niskiej zabudowie)
  • Miejsce postojowe w garażu: 50 000 zł (zakup obligatoryjny)
  • Stan prawny: pełna własność, księga wieczysta
  • Oferta: bezpośrednia


Układ pomieszczeń

Mieszkanie ma przemyślany, ustawny rozkład:

  • Salon z aneksem kuchennym: 20,1 m²
  • Sypialnia: 8,9 m²
  • Łazienka: 6,1 m²
  • Korytarz: 12,9 m² (z zabudową do przechowywania)

Z salonu jest bezpośrednie wyjście na taras i ogród, dzięki czemu strefa dzienna zyskuje dodatkową, prywatną przestrzeń do codziennego użytkowania.


Standard wykończenia

Lokal jest gotowy do zamieszkania – nie wymaga żadnych dodatkowych nakładów finansowych.

Kuchnia wykonana została na zamówienie i wyposażona w pełną zabudowę meblową, zapewniającą wygodę oraz maksymalne wykorzystanie przestrzeni. W przedpokoju znajdują się pojemne szafy pełniące funkcję praktycznej garderoby z dużą ilością miejsca do przechowywania.

Wnętrze utrzymane jest w ponadczasowej, neutralnej kolorystyce – biel, beże, błękit i szarości zostały uzupełnione drewnianą zabudową oraz elementami w kolorze naturalnego drewna i granitu na podłodze. Charakteru dodaje nowoczesna zabudowa kuchenna w czerwonym kolorze, która wprowadza energię i wyrazisty akcent do strefy dziennej.


Ogródek — prywatna przestrzeń relaksu

Taras z wydzieloną strefą wypoczynkową prowadzi do prywatnego ogródka, graniczącego wyłącznie z innymi ogrodami mieszkańców – bez ruchu ulicznego i bez dostępu osób postronnych.

Na jego granicy rośnie okazały, wieloletni dąb, który tworzy wyjątkowy klimat i zapewnia naturalne zacienienie w cieplejszych miesiącach. Na elewacji budynku znajduje się także kran ogrodowy ułatwiający pielęgnację roślin.


Budynek i części wspólne

Apartamentowiec ma kameralny charakter – niewielka liczba mieszkań przekłada się na większą prywatność niż w dużych kompleksach.

· stała współpraca z firmą ochroniarską

· rowerownia i wózkownia

· parking naziemny dla gości

· dobrze utrzymane otoczenie budynku; wspólnota dba o części wspólne

Miejsce postojowe w garażu podziemnym zlokalizowane jest blisko windy, co znacząco ułatwia codzienne funkcjonowanie – szczególnie zimą lub podczas przenoszenia zakupów.


Lokalizacja i komunikacja

Spokojna część Tarchomina – okolice ulic Mehoffera, Światowida i Modlińskiej – to połączenie niskiej zabudowy, dużej ilości zieleni oraz dobrej infrastruktury.

W pobliżu znajdują się:

· Galeria Północna

· Biedronka, Lidl, Kaufland, Carrefour, Żabka

· Rossmann, apteki, przychodnie, salony piękności, siłownie

· szkoły, przedszkola, basen

· restauracje, kino oraz tereny rekreacyjne

Komunikacja miejska:

· Autobusy (m.in. 126, 133, 152, 186, 211, 314, 509, 511, 516, 518 oraz linie nocne)

· Tramwaje 2 i 17 (ok. 7 minut spacerem)

· Dojazd do metra Młociny – ok. 14 minut tramwajem lub autobusem

Lokalizacja zapewnia szybkie i wygodne połączenie z centrum Warszawy oraz komfortowy wyjazd w kierunku Gdańska. W pobliżu znajdują się tereny rekreacyjne – nad Zalew Zegrzyński można dojechać w ok. 25 minut, a latem dostępna jest przeprawa promowa przez Wisłę z Tarchomina na Bielany. W okolicy przebiegają liczne ścieżki rowerowe. Dostępna jest też pełna infrastruktura handlowo-usługowa i edukacyjna.


Dla kogo?

· Dla singla – komfortowa przestrzeń z możliwością pracy zdalnej i relaksu na świeżym powietrzu

· Dla pary lub rodziny z dzieckiem – bezpieczny parter, prywatny ogródek, spokojne sąsiedztwo, dobra komunikacja i infrastruktura

· Dla inwestora – 2-pokojowy układ z aneksem kuchennym to jeden z najbardziej poszukiwanych formatów najmu w tej części Warszawy, ogródek oraz miejsce parkingowe dodatkowo zwiększają atrakcyjność oferty.


Cena

  • Mieszkanie: 859 000 zł
  • Miejsce postojowe w garażu podziemnym: 50 000 zł (zakup obligatoryjny)
Jacek
Zadzwoń do oferenta
Zadzwoń do oferenta: +48 512 070 757
Powiedz, że znalazłaś/eś ofertę na Bezposrednie.com. Dziękujemy.
Wyślij wiadomość do oferenta
Wyślij wiadomość do oferenta

Zgadzam się też na otrzymanie:

reklama