Mieszkanie na sprzedaż, woj. małopolskie / dodano: 10.04.2026
Kompozytorów, małopolskie, Kraków, Bronowice, Bronowice Małe
Cena: 1 490 000 PLN  (21 497,62 PLN/m²)
Powierzchnia mieszkalna
69,31 m²
Czynsz dla adm.
850 PLN
Liczba pokoi
3
Piętro
5
Liczba pięter
7
Rok budowy
2022
Typ domu
inny
Materiał budowlany
beton
Meble
Tak
Winda
Tak
Domofon
Tak
Balkon
Tak
Telefon
Tak
Internet
Tak
Prąd
Tak
Siła
Tak
Woda
Tak
Numer oferty
gratka-46518563
Data aktualizacji
2026-04-25 04:00:43
Opis:

Sprzedamy trzypokojowe w pełni urządzone w wysokim standardzie mieszkanie o powierzchni 69,31 m2 położone na piątym piętrze nowoczesnego budynku z 2022 roku z windą na Osiedlu Wizjonerów w krakowskich Bronowicach.


Lokal został zaprojektowany przez architekta wnętrz i wykończony w 2024 roku z dbałością o każdy detal, przy użyciu wysokiej jakości materiałów przez profesjonalną firmę projektowo-wykończeniową.


Całe mieszkanie zostało zaprojektowane i urządzone tak, aby było maksymalnie funkcjonalne, wygodne i bardzo łatwe w codziennym użytkowaniu.


Dzięki licznej zabudowie meblowej na wymiar (w tym bardzo pojemnym szafom) w mieszkaniu jest mnóstwo miejsca do przechowywania.


Cała zabudowa meblowa w mieszkaniu została wykonana na wymiar według projektu architekta wnętrz.


Mieszkanie jest gotowe do zamieszkania bez dodatkowych nakładów.


Ciepła woda oraz ogrzewanie pochodzą z sieci miejskiej MPEC, a w budynku nie ma gazu.


Mieszkanie jest zamieszkiwane wyłącznie przez pierwszych właścicieli i nigdy nie było wynajmowane.



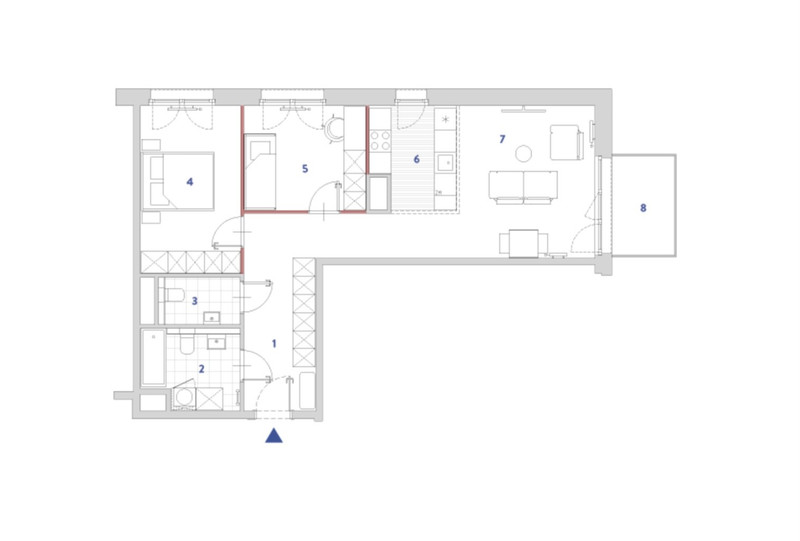
Układ pomieszczeń:


  • Pokój dzienny – przestronny, z kanapą z szezlongiem, pufą, stołem z krzesłami, pojemną meblościanką na wymiar oraz dużym ekranem filmowym sterowanym za pomocą pilota i półką na rzutnik.
  • Kuchnia – jasna, duża, z meblami na wymiar, blatami wykonanymi z granitu w ciepłym, eleganckim odcieniu, lakobelem w kolorze jasnozielonym oraz sprzętami AGD (płyta indukcyjna, piekarnik, pochłaniacz, lodówka z zamrażarką, zmywarka 60').
  • Sypialnia – z dużym, wygodnym łóżkiem oraz zabudową meblową na wymiar, w tym bardzo pojemną szafą.
  • Gabinet – z zabudową meblową - pojemną szafą i biurkiem, wykonaną na wymiar; możliwość łatwej adaptacji na pokój dziecięcy.
  • Łazienka – z prysznicem walk-in z deszczownicą, zabudową meblową z miejscem na pralkę i suszarkę bębnową (obie są na wyposażeniu), oraz blatem pod umywalką wykonanym z granitu w ciepłym, eleganckim odcieniu. Na ścianach i podłodze wysokiej jakości płytki - na podłodze płytki antypoślizgowe.
  • Osobna toaleta – z zabudową meblową i blatem pod umywalką wykonanym z granitu w ciepłym, eleganckim kolorze, wykończona wysokiej jakości płytkami. Na podłodze płytki antypoślizgowe.
  • Przedpokój – z dużą szafą, wygodnym siedziskiem i wieszakami; wszystkie te elementy, podobnie jak cała zabudowa meblowa w mieszkaniu, zostały wykonane na wymiar według projektu architekta wnętrz.
  • Do mieszkania przynależy balkon o powierzchni 5,22 m².



Widok:


Z okien salonu oraz balkonu roztacza się piękna panorama m.in. na Wzgórze św. Bronisławy, w tym Kopiec Kościuszki oraz pasmo górskie, w tym Tatry - przy dobrej widoczności widok na Tatry jest wyjątkowo imponujący.



Infrastruktura i lokalizacja:


Mieszkanie położone jest w prestiżowej i zielonej części Bronowic, na Osiedlu Wizjonerów, które w oparciu o koncepcję 15-minutowego miasta, oferuje pełną i wygodną infrastrukturę na miejscu. Na Osiedlu Wizjonerów znajdują się:


  • kawiarnie, restauracje, sklepy, piekarnie, cukiernia, apteka, gabinet lekarski, salony fryzjerskie, klub osiedlowy K2O, myjnia samochodowa
  • zielone dziedzińce z ławkami i obiektami małej architektury, liczne place zabaw
  • przedszkola oraz żłobki
  • w pobliżu Szkoła Podstawowa nr 50, korty tenisowe, park, kompleksy biurowe (Armii Krajowej, Jasnogórska)
  • w bliskiej odległości znajdują się również Lidl, Biedronka, Galeria Bronowice oraz IKEA


Okolica jest zielona, zadbana i sprzyja codziennym spacerom oraz rekreacji. Osiedle Wizjonerów objęte jest monitoringiem oraz całodobową ochroną.



Doskonała komunikacja:


  • 5–6 minut pieszo do najbliższego przystanku tramwajowego i autobusowego
  • 8–10 minut spacerem do stacji SKA Kraków-Bronowice
  • 10–15 minut tramwajem do przystanku Teatr Bagatela, czyli ścisłego centrum Krakowa
  • ok. 8 minut Szybką Koleją Aglomeracyjną (SKA) do Dworca Głównego
  • wygodny i szybki dojazd samochodem do centrum Krakowa (ok. 15 minut)
  • doskonały dojazd do uczelni wyższych: AGH, UKEN, Uniwersytet Rolniczy
  • wygodny i szybki wyjazd do autostrady A4 oraz na lotnisko Kraków-Balice



Atuty:


  • Zabudowy meblowe w łazience i toalecie wykonane są z forniru odpornego na wilgoć, a ściany i podłogi wykończone wysokiej jakości płytkami. Na podłogach w obu łazienkach płytki antypoślizgowe.
  • W całym mieszkaniu (poza łazienkami) znajdują się panele o najwyższej klasie odporności na ścieranie.
  • W przedpokoju oraz w części kuchni/salonu zamontowano duże lustra wykonane na wymiar, które optycznie powiększają przestrzeń.
  • W oknach w całym mieszkaniu znajdują się plisy typu "plaster miodu", zapewniające prywatność i możliwość pełnego zaciemnienia.
  • W cenie mieszkania pozostają meble, cała zabudowa meblowa oraz sprzęty AGD: pralka, suszarka bębnowa, lodówka z zamrażarką, zmywarka, płyta indukcyjna, piekarnik, a także ekran filmowy.
  • Balkon o pow. 5,22 m².
  • Spokojne, ciche sąsiedztwo.
  • Ergonomiczny, przemyślany układ pomieszczeń.
  • Dodatkowo płatne wygodne miejsce postojowe w garażu podziemnym i komórka lokatorska w łącznej cenie 90 000 PLN, których zakup jest obligatoryjny.



Czynsz administracyjny:


Czynsz administracyjny wynosi obecnie 850 zł miesięcznie i obejmuje zaliczki m.in. na wodę (zimną, ciepłą - miejską), ogrzewanie miejskie, wywóz odpadów komunalnych, fundusz remontowy, ochronę.



Cena:


1 490 000 PLN (mieszkanie wraz z meblami, zabudową meblową, sprzętami AGD i ekranem filmowym) + 90 000 PLN (miejsce postojowe w garażu podziemnym wraz z komórką lokatorską). Bez prowizji.


Sprzedaż jest realizowana bez pośredników/biur nieruchomości.

BCD
Zadzwoń do oferenta
Zadzwoń do oferenta: +48 735 470 948
Ogłoszeniodawca nie zgadza się na kontakt agencji nieruchomości.
Powiedz, że znalazłaś/eś ofertę na Bezposrednie.com. Dziękujemy.
Wyślij wiadomość do oferenta
Wyślij wiadomość do oferenta

Zgadzam się też na otrzymanie:

reklama