Mieszkanie na sprzedaż, woj. Polska / dodano: 24.03.2026
Ks. Stanisława Staszica, wielkopolskie, gnieźnieński, Gniezno
Cena: 240 000 PLN  (5644,40 PLN/m²)
Powierzchnia mieszkalna
42,52 m²
Czynsz dla adm.
297 PLN
Liczba pokoi
2
Piętro
4
Liczba pięter
4
Typ domu
inny
Materiał budowlany
cegła
Meble
Nie
Czy zamknięty obiekt
Tak
Piwnica
Tak
Domofon
Tak
Prąd
Tak
Gaz
Tak
Woda
Tak
Numer oferty
gratka-46395181
Data aktualizacji
2026-03-30 20:03:08
Opis:

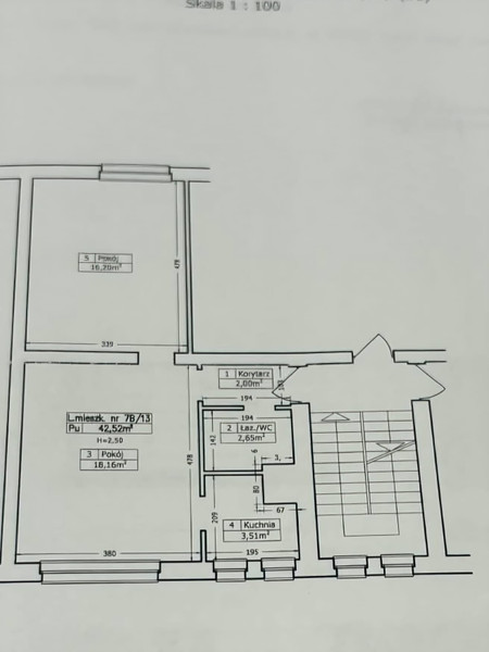
Oferujemy na sprzedaż mieszkanie o powierzchni 42,52 m², położone w Gnieźnie, przy ulicy Księdza Stanisława Staszica, w samym centrum miasta. Lokalizacja ta zapewnia łatwy dostęp do sklepów, szkoły, przedszkola, przychodni, basenu, parku, hali sportowej oraz komunikacji miejskiej, a także placu zabaw dla dzieci.


Mieszkanie znajduje się na 4. piętrze w 4-piętrowym budynku, co gwarantuje spokój i ciszę. Pomieszczenia składają się z kuchni oddzielnej o powierzchni 3,51 mkw, dwóch pokoi (18,16 mkw i 16,20 mkw), łazienki z WC o powierzchni 2,65 mkw oraz korytarza o powierzchni 2,00 mkw. Do mieszkania przynależy również piwnica o powierzchni około 2,00 mkw, co stanowi dodatkową przestrzeń do przechowywania. Czynsz około 297,00 złotych.


Nieruchomość jest w stanie do remontu, co daje przyszłym właścicielom możliwość aranżacji wnętrza według własnych preferencji. Mieszkanie cechuje się dużą ilością naturalnego światła oraz funkcjonalnym układem pomieszczeń. Z jednego pokoju roztacza się widok na plac zabaw, z drugiego natomiast na pobliski park, co dodatkowo podnosi atrakcyjność tego miejsca.


Ogrzewanie mieszkania jest miejskie, co gwarantuje komfort cieplny w chłodniejsze dni. Dodatkowym atutem jest dostępność miejsc parkingowych tuż przy wejściu.

To doskonała okazja dla osób poszukujących mieszkania w świetnie skomunikowanej lokalizacji, z możliwością własnej aranżacji wnętrza i bliskością licznych udogodnień.

Mieszkanie dostępne od zaraz.


Zainteresowanych zapraszamy do kontaktu z Agnieszką Janusz.


Powyższy opis ma charakter informacyjny i nie stanowi oferty handlowej w rozumieniu Kodeksu Cywilnego. Wszystkie zawarte w nim informacje zostały sporządzone na podstawie oględzin nieruchomości oraz informacji uzyskanych od Właściciela. Wszelkie prawa zastrzeżone. Kopiowanie, powielanie oraz wykorzystywanie zdjęć i opisu bez zgody autora jest zabronione.

Agnieszka Janusz Nieruchomości
Zadzwoń do oferenta
Zadzwoń do oferenta: +48 500 197 101
Powiedz, że znalazłaś/eś ofertę na Bezposrednie.com. Dziękujemy.
Wyślij wiadomość do oferenta
Wyślij wiadomość do oferenta

Zgadzam się też na otrzymanie:

reklama