Mieszkanie na sprzedaż, woj. łódzkie / dodano: 16.02.2026
Dębowa, łódzkie, Łódź, Górna, Górniak
Cena: 599 999 PLN  (10 148,83 PLN/m²)
Powierzchnia mieszkalna
59,12 m²
Czynsz dla adm.
475 PLN
Liczba pokoi
3
Piętro
2
Liczba pięter
6
Rok budowy
2011
Typ domu
inny
Winda
Tak
Czy zamknięty obiekt
Tak
Piwnica
Tak
Domofon
Tak
Balkon
Tak
Prąd
Tak
Woda
Tak
Numer oferty
gratka-46114093
Data aktualizacji
2026-03-03 02:10:47
Opis:

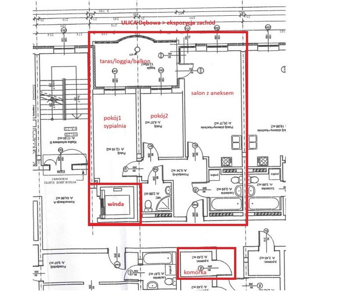
Na sprzedaż funkcjonalne mieszkanie o powierzchni 56,43 m², położone na 2. piętrze w 6-piętrowym budynku z 2011 roku, wyposażonym w dwie windy z poziomu parteru.

To propozycja dla osób, które cenią komfort, spokój oraz doskonałą lokalizację, a jednocześnie chcą mieszkać blisko centrum miasta.

Przemyślany układ – wygoda na co dzień

Mieszkanie zostało zaprojektowane w sposób, który doskonale sprawdzi się zarówno dla osoby samotnej lub pary, jak i dla rodziny z dzieckiem:

  • przestronny salon z aneksem kuchennym – idealny do codziennego życia i spotkań z bliskimi
  • dwie niezależne sypialnie z pojemnymi szafami (sypialnia + pokój dziecka / gabinet do pracy zdalnej)
  • dwie łazienki – jedna z prysznicem i WC, druga z wanną (ogromna wygoda dla rodziny)
  • funkcjonalny przedpokój z dużą szafą w zabudowie
  • wysokość mieszkania 266cm

Dodatkowym atutem jest duża loggia o powierzchni 12,55 m², stanowiąca naturalne przedłużenie strefy dziennej – idealna na poranną kawę, relaks po pracy lub bezpieczną przestrzeń dla dziecka.

Do mieszkania przynależy również komórka lokatorska (2,69 m²), zlokalizowana na tym samym piętrze, zaledwie kilka kroków od drzwi wejściowych.

Gotowe do zamieszkania

Mieszkanie jest odświeżone (wiosna 2021 r.), sprzedawane przez pierwszego właściciela i wyposażone w meble oraz sprzęt AGD (m.in. pralka, lodówka, zmywarka).

To idealna opcja dla osób, które chcą wprowadzić się od razu, bez dodatkowych kosztów i remontów.

Bezpieczne i zielone otoczenie

Budynek znajduje się na zamkniętym, zagospodarowanym terenie, z dostępem do:

  • placu zabaw / piaskownicy dla dzieci
  • zadaszonej altany z częścią grillową – idealnej na spotkania sąsiedzkie i rodzinne

Z okien oraz loggii rozpościera się widok na Aleję Dębów, co zapewnia poczucie przestrzeni i kontakt z zielenią.

Lokalizacja – Górna / Górniak

Cicha, jednokierunkowa ulica, a jednocześnie kilka minut spacerem do ul. Piotrkowskiej.

W bezpośrednim sąsiedztwie:

  • sklepy, apteki, przychodnie (w tym prywatny LUXMED oraz w ramach NFZ Medycyna Rodzinna LUXMED)
  • miejsca kultury (Centralne Muzeum Włókiennictwa, Biblioteka Miejska PRZYSTAŃ nr65)
  • parki i tereny zielone (Park im. Władysława Reymonta oraz Park im. Jana Kilińskiego)
  • szkoły, przedszkola, uczelnie (m.in. Przedszkole Miejskie nr 34, Szkoła Podstawowa nr 10, Ogólnokształcąca Szkoła Muzyczna I i II stopnia, Politechnika Łódzka oraz prywatne uczelnie)
  • bardzo dobra komunikacja miejska

Podsumowanie

To mieszkanie łączy w sobie funkcjonalność, świetną lokalizację i komfort życia. Sprawdzi się zarówno jako pierwsze mieszkanie, jak i bezpieczna przestrzeń dla rodziny z dzieckiem.

Zapraszamy do kontaktu. Oferta prywatna.

Przemek
Zadzwoń do oferenta
Zadzwoń do oferenta: +48 796 776 645
Ogłoszeniodawca nie zgadza się na kontakt agencji nieruchomości.
Powiedz, że znalazłaś/eś ofertę na Bezposrednie.com. Dziękujemy.
Wyślij wiadomość do oferenta
Wyślij wiadomość do oferenta

Zgadzam się też na otrzymanie:

reklama