Mieszkanie na sprzedaż, woj. mazowieckie / dodano: 30.12.2025
Wał Miedzeszyński, mazowieckie, Warszawa, Wawer
Cena: 470 000 PLN  (14 915,90 PLN/m²)
Powierzchnia mieszkalna
31,51 m²
Liczba pokoi
1
Piętro
1
Liczba pięter
2
Numer oferty
gratka-45530719
Data aktualizacji
2025-12-30 11:37:01
Opis:

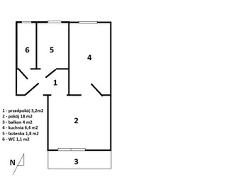
Mam do zaoferowania mieszkanie zlokalizowane na zamkniętym osiedlu w dzielnicy Wawer przy ul. Wał Miedzeszyński 414b. Mieszkanie znajduje się na 1 piętrze w niskim 2 piętrowym budynku. Tylko dwa lokale na piętrze i łącznie 5 lokali na klatce schodowej. W skład mieszkania wchodzi salon o powierzchni ~18m2, widna kuchnia ~6,5m2 , przedpokój oraz łazienka z oddzielnym WC. Z salonu przez duże okno balkonowe wychodzi się na balkon / loggię o powierzchni ~4m2 z południową ekspozycją.


Stan mieszkania do odświeżenia lub remontu.


Do mieszkania przynależy indywidualne prawo do korzystania z miejsca parkingowego o powierzchni 12m2. Miejsce parkingowe zlokalizowane jest bezpośrednio przy wejściu do budynku.


Przynależne jest również wspólne pomieszczenie gospodarcze zlokalizowane na parterze przez które można dostać się do wspólnego ogródka.


Osiedle jest ogrodzone i zamknięte z możliwością wjazdu poprzez szlabany zlokalizowane od strony ul. Wał Miedzeszyński oraz bliżej klatki schodowej od ul. Jeziorowej - przy tym wjeździe urządzono zamknięty plac zabaw z plenerową siłownią.


Mieszkanie idealne do zamieszkania przez Singla lub parę (pierwsze mieszkanie na start) lub z przeznaczeniem na inwestycję / wynajem.


Cena mieszkania 470 000,00 zł plus wyznaczone miejsce parkingowe 20 000,00 zł co daje łączną kwotę 490 000,00 zł.


Stan prawny - pełna własność, możliwość wspomagania się kredytem przy zakupie.


Możliwość oglądania od 7 stycznia 2026. Sprzedaż bezpośrednio przez Właściciela. Agencjom dziękujemy.


Zapraszam

Robert
Zadzwoń do oferenta
Zadzwoń do oferenta: +48 603 794 179
Ogłoszeniodawca nie zgadza się na kontakt agencji nieruchomości.
Powiedz, że znalazłaś/eś ofertę na Bezposrednie.com. Dziękujemy.
Wyślij wiadomość do oferenta
Wyślij wiadomość do oferenta

Zgadzam się też na otrzymanie:

reklama