Biuro do wynajęcia, woj. małopolskie / dodano: 07.12.2025
Michała Stachowicza, małopolskie, Kraków, Zwierzyniec
Cena: 4000 PLN  (59,70 PLN/m²)
Powierzchnia
67 m²
Piętro
parter
Liczba pięter
4
Numer oferty
gratka-45315985
Data aktualizacji
2025-12-22 02:09:18
Opis:

Do wynajęcia piękny, wyremontowany lokal biurowy w bardzo zadbanej kamienicy w centrum Krakowa, przy ul. Stachowicza 4.

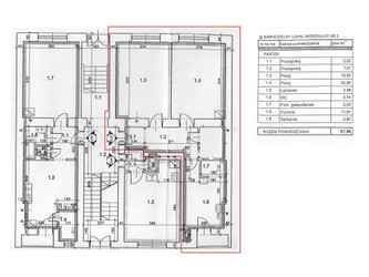
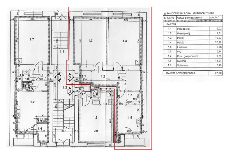
Lokal znajduje się na parterze (wejście z klatki schodowej), ma powierzchnię 67m2 i składa się z dwóch pokoi, kuchni, łazienki z WC oraz przedpokoju.

Kamienica wyposażona jest w system monitoringu, dostęp do internetu, domofon oraz posiada miejsce na reklamę na zewnątrz budynku.


Znakomite miejsce na kancelarię, gabinet, biuro księgowe lub projektowe.


Cena 4000 zł netto + media.


Wynajmie właściciel -602-533-668


P.S.


Biurom nieruchomości i pośrednikiem bardzo dziękuję - proszę nie dzwonić ani nie pisać w sprawie współpracy.

Agnieszka
Zadzwoń do oferenta
Zadzwoń do oferenta: +48 602 533 668
Ogłoszeniodawca nie zgadza się na kontakt agencji nieruchomości.
Powiedz, że znalazłaś/eś ofertę na Bezposrednie.com. Dziękujemy.
Wyślij wiadomość do oferenta
Wyślij wiadomość do oferenta

Zgadzam się też na otrzymanie:

reklama