Biuro do wynajęcia, woj. mazowieckie / dodano: 19.12.2025
Plac Mirowski, mazowieckie, Warszawa, Śródmieście
Cena: 5800 PLN  (55,86 PLN/m²)
Powierzchnia
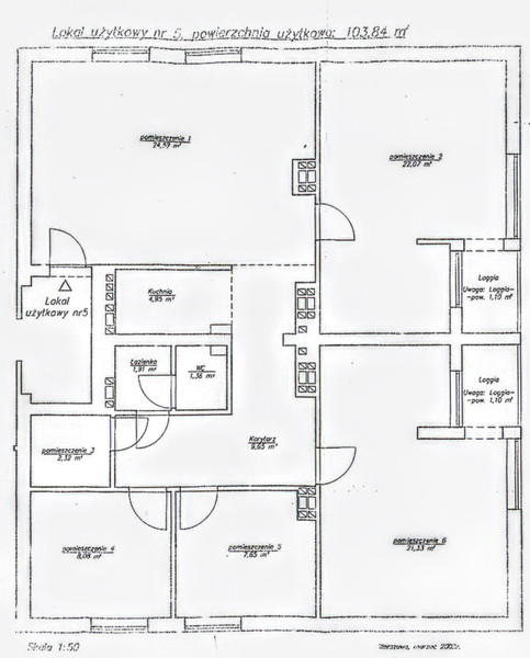
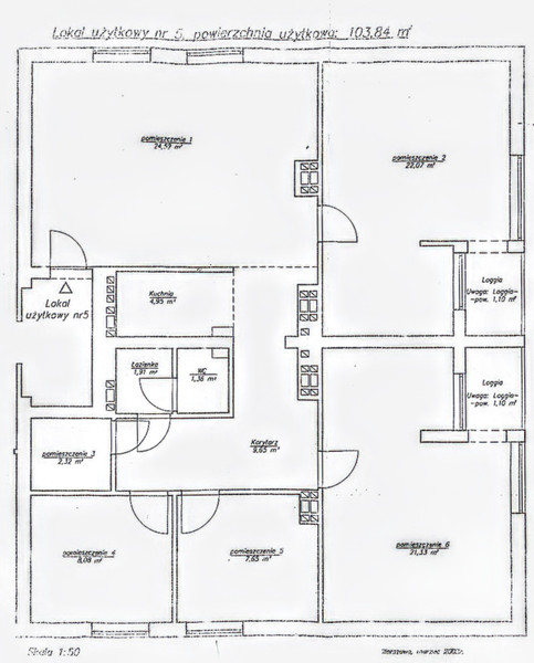
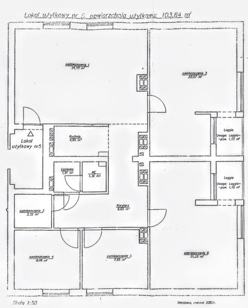
103,84 m²
Piętro
1
Liczba pięter
6
Numer oferty
gratka-45453193
Data aktualizacji
2026-01-27 07:35:10
Opis:

PRZETARG NA NAJEM LOKALU UŻYTKOWEGO PRZY PL. MIROWSKIM 14 W WARSZAWIE

Spółdzielnia Mieszkaniowa "Żelazna Brama" (pl. Mirowski 14, 00-138 Warszawa; wynajmie w drodze pisemnego przetargu nieograniczonego lokal użytkowy nr U5 o powierzchni 103,84 m2 usytuowany na pierwszym piętrze budynku przy pl. Mirowskim 14 w Warszawie.

Lokal w sąsiedztwie Hali Mirowskiej przy placu Mirowskim 14, gdzie znajdują się liczne punkty handlowe i usługowe.

Oferty należy składać do dnia 23.02.2026 r. do godziny 16:00 w Sekretariacie Spółdzielni przy pl. Mirowskim 14 w Warszawie (wejście od ul. Elektoralnej nad sklepem Rossmann) w zaklejonej kopercie z dopiskiem „Przetarg na najem lokalu użytkowego nr U5 przy Pl. Mirowski 14”.

Oferty będą otwarte w dniu 23.02.2026 r. o godzinie 17:00. Oferent powinien być dostępny pod numerem telefonu wskazanym w ofercie w ciągu dwóch godzin od terminu otwarcia ofert.

Oferta powinna zawierać:

  • imię i nazwisko lub nazwę firmy, adres siedziby, numer telefonu, adres e-mail;
  • aktualny wypis z CEIDG lub KRS;
  • rodzaj działalności jaka będzie prowadzona w lokalu;
  • następujące zaświadczenia wystawione nie wcześniej niż jeden miesiąc przed terminem składania ofert:

− zaświadczenie z Urzędu Skarbowego o niezaleganiu w podatkach;

− zaświadczenie z ZUS o niezaleganiu w opłacaniu składek;

− zaświadczenie (lub dokument) z banku, w którym oferent prowadzi rachunek potwierdzające sytuację finansową oferenta zapewniającą wypłacalność;

  • oświadczenie oferenta o zapoznaniu się ze stanem technicznym lokalu i wzorem umowy najmu;
  • oświadczenie oferenta o przeprowadzeniu prac wykończeniowych i adaptacyjnych lokalu (w tym montażu klimatyzacji i oświetlenia awaryjnego) na własny koszt;
  • datę i podpis oferenta lub osób go reprezentujących oraz upoważnienie do reprezentowania oferenta – jeżeli ofertę podpisuje osoba nie wskazana w CEIDG lub KRS.

Ważne informacje:

  • czynsz nie obejmuje następujących opłat przypadających na lokal: kosztów mediów, podatku od nieruchomości oraz opłaty za szyld reklamowy mocowany do elewacji nad witryną lokalu;
  • lokal do własnej aranżacji;
  • szczegółowych wiadomości dotyczących przetargu i najmowanego lokalu można uzyskać kontaktując się bezpośrednio ze Spółdzielnią;
  • lokal można obejrzeć po umówieniu terminu ze Spółdzielnią;
  • Spółdzielnia nie wyraża zgody na prowadzenie w lokalu działalności gospodarczej uciążliwej dla mieszkańców;
  • warunkiem podpisania umowy najmu jest wpłata kaucji stanowiącej równowartość dwukrotności czynszu brutto;
  • złożona oferta nie podlega zwrotowi;
  • Spółdzielnia zastrzega sobie prawo do unieważnienia przetargu bez podania przyczyn.


Spółdzielnia Mieszkaniowa Żelazna Brama
Zadzwoń do oferenta
Zadzwoń do oferenta: +48 22 620 06 16
Ogłoszeniodawca nie zgadza się na kontakt agencji nieruchomości.
Powiedz, że znalazłaś/eś ofertę na Bezposrednie.com. Dziękujemy.
Wyślij wiadomość do oferenta
Wyślij wiadomość do oferenta

Zgadzam się też na otrzymanie:

reklama