Dom na sprzedaż, woj. małopolskie / dodano: 11.10.2025
Stare Wiślisko, małopolskie, Kraków, Nowa Huta
Cena: 2 055 000 PLN  (7339,29 PLN/m²)
Powierzchnia mieszkalna
280 m²
Powierzchnia działki
357 m²
Liczba pokoi
6
Typ domu
szeregowiec
Materiał budowlany
cegła
Piwnica
Tak
Balkon
Tak
Telefon
Tak
Internet
Tak
Prąd
Tak
Siła
Tak
Gaz
Tak
Woda
Tak
Numer oferty
gratka-44504039
Data aktualizacji
2026-05-14 12:43:04
Opis:

DOM W KRAKOWIE


DOM SZEREGOWY NAROŻNY W STANIE DEWELOPERSKIM Z RYNKU WTÓRNEGO O POW. 280 M2,


W TYM PODZIEMIE Z GARAŻEM OK. 100 M2


+ MIEJCE POSTOJOWE PRZY DOMIE


6 POKOI


5 SYPIALNI


3 LAZIENKI


+ STRYCH DO PRZECHOWYWANIA (STROP BETONOWY)



WYJĄTKOWA LOKALIZACJA:


Kraków – Nowa Huta – ul. Stare Wiślisko 55D

Kameralna Inwestycja Stare Wiślisko

Ciche, spokojne otoczenie w bezpośrednim sąsiedztwie innych nowych domów jednorodzinnych.

Tylko 10 km od centrum Krakowa (autobus na ul. Klasztornej, tramwaj na alei Jana Pawła II - Przystanek Klasztorna), zielone okolice, blisko piechotą lub rowerem do lasku Mogilskiego, placu zabaw, kompleksu sportowego z pływalnią Com Com Zone, klubu tenisowego, przystani nad Wisłą (żaglówki, kajaki, rowery wodne), łąk nowohuckich, …

Historyczne miejsce nieopodal Klasztoru Cystersów.


OPIS: DUŻY DOM Z SALONEM I OGRÓDKIEM Z ORIENTACJĄ NA POŁUDNIE Z IDEALNYM ROZWIĄZANIEM – OGROMNE PODZIEMIE – STRYCH DO PRZECHOWYWANIA



DOM MOŻE STANOWIĆ CAŁOŚĆ LUB Z DODATKOWYMI PRACAMI 2 NIEZALEŻNE MIESZKANIA O IDENTYCZNYCH LUB ROŻNYCH ROZKŁADACH


CENA W OGŁOSZENIU DOTYCZY DOMU 55D O POW. OK. 280 M2 NA DZIAŁCE O POW. OK. 367 M2, Z OGRÓDKIEM O POW. OK 173 M2 – SEGMENT SZEREGOWY NAROŻNY


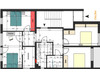
Rozkład pomieszczeń domu jako całość:

1. na piętrze (pow. ok. 78 m2 + 6 m2 klatki schodowej)

· 4 sypialnie w tym jedna z garderobą

· 2 łazienki z toaletą

​​

2. na parterze (pow. ok. 80 m2 + 13 m2 klatki schodowej)

· salon ​

· duża kuchnia

· biuro

· łazienka z toaletą

· przedpokój

3. w podziemiu (pow. ok. 97 m2 + 6 m2 klatki schodowej)

· garaż na kilka samochodów

· kotłownia

· pralnia

· pomieszczenia do przechowywania lub innego przeznaczenia (sala gier, kino domowe, domowa sala gimnastyczna, siłownia...)

4. strych do przechowywania



MATERIAŁY I ROZWIĄZANIA BUDOWLANE:

Każdy dom szeregowy ma własną ścianę działową – nie jest wspólna z sąsiednim domem szeregowym

Na płycie fundamentowej dennej

Podziemia ze ścianami z betonu szczelnego

Pustak ceramiczny POROTHERM

Ocieplenie zewnętrzne (styropian)

Tynk akrylowy

Dachówka ceramiczna

Okna pcv OKNOPLAST - 3 szybowe

Drzwi zewnętrzne OKNOPLAST antywłamaniowe

Podjazd do garażu wybrukowany

Wewnątrz: tynki gipsowe i cementowo-wapienne (w łazience i wc), wylewki betonowe, wszystkie instalacje rozprowadzone

Ogrzewanie: gazowe - podłogowe, z kotłem kondensacyjnym 1-funkcyjnym z zasobnikiem

Media: gaz, prąd, woda i kanalizacja miejska

EURO-FENETRE Sp. z o. o.
Zadzwoń do oferenta
Zadzwoń do oferenta: +48 600 702 365
Ogłoszeniodawca nie zgadza się na kontakt agencji nieruchomości.
Powiedz, że znalazłaś/eś ofertę na Bezposrednie.com. Dziękujemy.
Wyślij wiadomość do oferenta
Wyślij wiadomość do oferenta

Zgadzam się też na otrzymanie:

reklama