Dom na sprzedaż, woj. Polska / dodano: 10.10.2025
Małołęcka, mazowieckie, legionowski, Nieporęt, Nieporęt
Cena: 889 000 PLN  (7937,50 PLN/m²)
Powierzchnia mieszkalna
112 m²
Powierzchnia działki
300 m²
Liczba pokoi
4
Typ domu
inny
Numer oferty
gratka-44483345
Data aktualizacji
2025-10-25 03:18:14
Opis:

Twój dom, Twoja opowieść – na Literackiej.

Nieporęt to jedna z najbardziej cenionych miejscowości podwarszawskich – idealna równowaga między przyrodą a wygodą życia. Tutaj każdego ranka budzi Cię cisza i śpiew ptaków, a popołudnia możesz spędzać nad Zalewem Zegrzyńskim, w pobliskim lesie czy na rowerze wzdłuż Kanału Żerańskiego.

Zamieszkaj na Literackiej – w miejscu, które daje oddech, ale nadal pozostaje w zasięgu miasta. Kameralne budynki w zabudowie bliźniaczej, zrealizowane w duchu komfortu, estetyki i funkcjonalności.

• Tylko 10 minut samochodem do granic Warszawy.

• Bezpośrednie sąsiedztwo przystanku autobusowego Przyjaciół 01.

• W okolicy szkoła podstawowa (2 km), Liceum Ogólnokształcące im. Stanisława Lema w Stanisławowie (4 km), przedszkola, sklepy, restauracje i punkty usługowe.

• Molo w Nieporęcie zaledwie 12 minut rowerem.


O inwestycji – jakość, spokój, bezpieczeństwo.

Oferujemy wyjątkowy lokal mieszkalny w nowoczesnym budynku w zabudowie bliźniaczej, będącym częścią kameralnego miniosiedla przy nowopowstałej ulicy Literackiej.

• Prywatna, ogrodzona przestrzeń.

• Własny ogródek.

• 2 miejsca postojowe.

• Nowoczesna architektura – biel, cegła, duże przeszklenia.

• Energooszczędne rozwiązania i wysoka jakość materiałów.

• Ogrzewanie gazowe.

• Stan deweloperski – baza pod Twój własny styl.


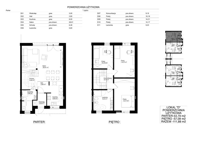
Dom 112 m² – przestrzeń, która daje swobodę.

Cenisz funkcjonalność, ale nie chcesz rezygnować z estetyki? Lubisz, gdy każde pomieszczenie ma swoje miejsce, a dom działa tak, jak Ty żyjesz? Właśnie taki jest ten projekt – dopracowany, nowoczesny i komfortowy.

Parter – 55 m².

• Wiatrołap.

• Kuchnia otwarta na salon.

• Duży salon z jadalnią i wyjściem na ogród.

• Łazienka z prysznicem.


Piętro – 57 m².

• Trzy ustawne sypialnie (ok. 10, 14, 14 m²).

• Łazienka z wanną lub prysznicem.


Powierzchnia działki 300 m².

Prywatna strefa rekreacyjna – więcej niż ogród, więcej niż dom.

To nie tylko mieszkanie – to przestrzeń do życia. Na terenie osiedla zaprojektowaliśmy prywatną strefę rekreacyjną wyłącznie dla mieszkańców:

Naturalne otoczenie drzew i zieleni – idealne na odpoczynek po pracy.

Bezpieczny plac zabaw – dla dzieci, które mają gdzie się wyszaleć.

Wspólne miejsce na ognisko lub grilla – wieczorne spotkania przy ogniu z sąsiadami i przyjaciółmi.

Ławki, ścieżki, zakątki ciszy – idealne na poranną kawę z książką albo rozmowę przy zachodzie słońca.

To osiedle będzie żyło – z relacjami, wspólnotą i spokojem. Bo komfort to nie tylko metry kwadratowe, ale atmosfera, którą tworzysz każdego dnia.


Dla kogo?

Ten dom to idealna propozycja:

• Dla rodziny z dziećmi szukającej przestrzeni, ogrodu i bezpieczeństwa.

• Dla pary pracującej zdalnie, która chce mieszkać komfortowo i z dala od zgiełku.

• Dla osób ceniących kameralną wspólnotę, kontakt z naturą i wysoki standard życia na co dzień.


Zadzwoń, napisz, umów się!

663 910 686


Zbigniew
Zadzwoń do oferenta
Zadzwoń do oferenta: +48 663 910 686
Powiedz, że znalazłaś/eś ofertę na Bezposrednie.com. Dziękujemy.
Wyślij wiadomość do oferenta
Wyślij wiadomość do oferenta

Zgadzam się też na otrzymanie:

reklama