Działka na sprzedaż, woj. wielkopolskie / dodano: 05.03.2026
Obodrzycka, wielkopolskie, Poznań, Rataje
Cena: 2 900 000 PLN  (1016,12 PLN/m²)
Powierzchnia działki
2854 m²
Typ domu
inny
Typ działki
inwestycyjna
Numer oferty
gratka-46237337
Data aktualizacji
2026-03-20 02:10:30
Opis:

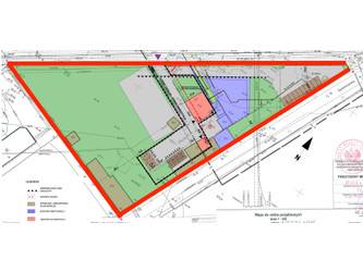
Na sprzedaż nieruchomość inwestycyjna z wydaną decyzją na budowę 3 budynków o łącznej powierzchni użytkowej 700m2 na terenie bezpośrednio przy ulicy Obodrzyckiej oraz Restauracji i Willi Sarbinowska.


Obiekt jak i sama nieruchomość może być przeznaczona pod budowę siedziby firmy, gabinety prywatne (klinika), biura, hotel (zakwaterowanie), lokale usługowo-handlowe pod wynajem, lokalizacja obiektów handlowych o powierzchni sprzedaży 400m2 do 2000m2, itd.


Możliwość powiększenia powierzchni sprzedaży do 7200m2 wraz z istniejącymi budynkami usługowo-magazynowymi. Możliwość wynajmu poszczególnych obiektów.


Nieruchomość jest położona w obrębie Żegrze bezpośrednio zjazd z ulicy Obodrzyckiej i nowo wybudowanej drodze gminnej 8KD-L będącej dojazdem do terenów centrum logistycznego Franowo – Żegrze.


Nieruchomość objęta jest miejscowym planem zagospodarowania przestrzennego terenów Poznańskiego Centrum Logistycznego Franowo – Żegrze w Poznaniu z 2008r XL/419/V/2008.

Doskonała lokalizacja przy bardzo ruchliwej ulicy Obodrzyckiej - 10 min od centrum Poznania oraz wjazdu na autostradę A2.


W przypadku uzyskania szczegółów zapraszam do kontaktu.

Przemek
Zadzwoń do oferenta
Zadzwoń do oferenta: +48 508 395 433
Ogłoszeniodawca nie zgadza się na kontakt agencji nieruchomości.
Powiedz, że znalazłaś/eś ofertę na Bezposrednie.com. Dziękujemy.
Wyślij wiadomość do oferenta
Wyślij wiadomość do oferenta

Zgadzam się też na otrzymanie:

reklama