Działka na sprzedaż, woj. wielkopolskie / dodano: 18.03.2026
Nowosądecka, wielkopolskie, Poznań, Starołęka-Minikowo-Marlewo
Cena: 1 395 000 PLN  (465 PLN/m²)
Powierzchnia działki
3000 m²
Typ domu
inny
Typ działki
budowlana
Numer oferty
gratka-46330797
Data aktualizacji
2026-04-02 02:09:11
Opis:

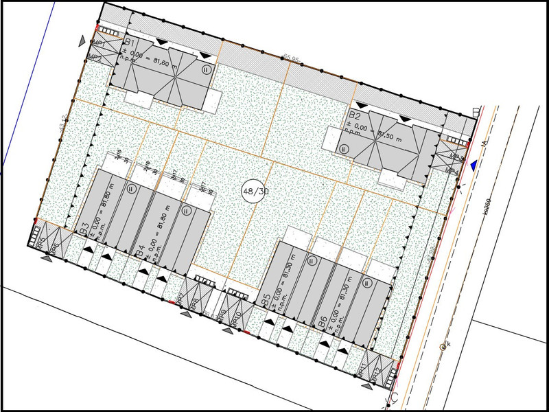
Polecam na sprzedaż działkę z projektem i pozwoleniem na budowę 6 domów jednorodzinnych dwulokalowych (12 lokali mieszkalnych, PUM: 1121,32).


Lokalizacja

Grunt znajduje się w granicach administracyjnych miasta Poznań na osiedlu Starołęka-Minikowo przy ulicy Nowosądeckiej 2. Położony w sąsiedztwie zabudowy mieszkaniowej jednorodzinnej i drobnych usług.

Samochodem do centrum miasta dojeżdżamy w zaledwie 15 minut przez wiadukt przy ul. Gołężyckiej.


Media

Prąd i kanalizacja znajdują się bezpośrednio przy działce, woda i gaz w ul. Sandomierskiej (50 m).


Okolica

300 m od granicy działki znajduje się przystanek autobusowy, którym dojedziemy do centrum.

Pełna infrastruktura usługowa w odległości 650 m przy Rondzie Minikowo (szkoły, sklepy, przychodnia itp.).


Parametry

  • Powierzchnia działki: 3000 m2
  • Zabudowa: 4 domy jednorodzinne dwulokalowe w zabudowie bliźniaczej i 2 domy jednorodzinne dwulokalowe wolnostojące (łącznie 12 lokali mieszkalnych)
  • PUM: 1121,32 m2
  • Powierzchnie lokali: 4x 101,85 m2 i 8x 89,24 m2
  • Cena: 1 395 000 zł + VAT


W powyższej cenie znajduje się pozwolenie na budowę, projekt architektoniczno-budowlany, projekt techniczny, warunki zabudowy, wizualizacje, projekt koncepcyjny przebudowy drogi i pozostała dokumentacja.


W kosztach budowy należy uwzględnić 50% kosztu przebudowy 90m ulicy Nowosądeckiej z kostki brukowej Eko-Domino (ok. 75 000 zł) z projektem.


Pozwolenie na budowę jest w trakcie uzyskiwania (wniosek złożony 17.02.26).


Po szczegóły zapraszam do kontaktu telefonicznego.


PS. Możliwy zakup sąsiedniego gruntu o powierzchni 3120 m2 za cenę 980 000 zł + VAT. Zabudowa: 7 domów jednorodzinnych (14 lokali). Aktualnie czekamy na warunki zabudowy.

Jakub
Zadzwoń do oferenta
Zadzwoń do oferenta: +48 799 720 176
Ogłoszeniodawca nie zgadza się na kontakt agencji nieruchomości.
Powiedz, że znalazłaś/eś ofertę na Bezposrednie.com. Dziękujemy.
Wyślij wiadomość do oferenta
Wyślij wiadomość do oferenta

Zgadzam się też na otrzymanie:

reklama