Lokal do wynajęcia, woj. pomorskie / dodano: 12.01.2026
Starowiejska, pomorskie, Gdynia, Śródmieście
Cena: 10 500 PLN  (150 PLN/m²)
Powierzchnia
70 m²
Piętro
parter
Liczba pięter
5
Typ domu
inny
Numer oferty
gratka-45682559
Data aktualizacji
2026-05-08 02:06:23
Opis:

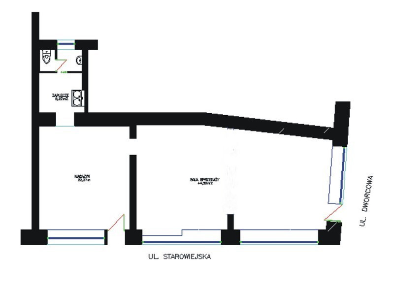
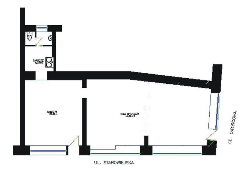
Do wynajęcia narożny lokal użytkowy: usługowo – handlowy, bardzo dobrze wyeksponwany i widoczny.

Lokal położony jest w wyjątkowej lokalizacji - na rogu ul. Starowiejskiej i Dworcowej, vis a vis dworca PKP Gdynia Główna. Jest to miejsce bardzo dobrze skomunikowane i dostępne - obok lokalu znajdują się ogólnodostępne miejsca postojowe przy ulicy. W lokalu przez ostatnie 10 lat był sklep sieci Carrefour.

Powierzcznia użytkowa lokalu - 70 m2 sala główna 45m, magazyn 20m i zaplecze z wc 5m.

Lokal posiada zgodę wspólnoty na sprzedaż alkoholu.

Lokal znajduje się na parterze kamienicy, posiada 2 bezpośrednie, niezależne wejścia z ulicy, a dzięki dużym witrynom jest bardzo dobrze nasłoneczniony i doświetlony.

Warunki najmu*:

  • wszystkie stawki netto + VAT

- Czynsz najmu 10500 zł / miesiąc netto

- Czynsz do wspólnoty (600/1200) i opłaty za media wg zużycia (woda, prąd, CO, śmieci)

- Kaucja zwrotna w wysokości 1-miesięcznego czynszu brutto

-Okres najmu min. 2 lata

Marlena
Zadzwoń do oferenta
Zadzwoń do oferenta: +48 602 593 435
Ogłoszeniodawca nie zgadza się na kontakt agencji nieruchomości.
Powiedz, że znalazłaś/eś ofertę na Bezposrednie.com. Dziękujemy.
Wyślij wiadomość do oferenta
Wyślij wiadomość do oferenta

Zgadzam się też na otrzymanie:

reklama