Mieszkanie na sprzedaż, woj. śląskie / dodano: 09.12.2025
śląskie, będziński, Czeladź
Cena: 254 000 PLN  (5291,67 PLN/m²)
Powierzchnia mieszkalna
48 m²
Liczba pokoi
2
Piętro
4
Liczba pięter
4
Numer oferty
gratka-45338371
Data aktualizacji
2025-12-09 21:28:52
Opis:

Opis nieruchomości

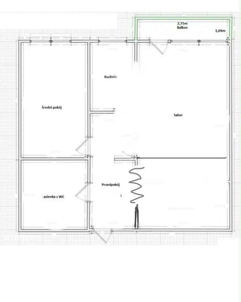
Powierzchnia: 48 m kw. (wraz z przestronną piwnicą)

Liczba pokoi: 2 + wydzielona garderoba

Piętro/l.pięter: 4/4

Rodzaj zabudowy: blok

Balkon: tak

Okna: plastikowe

Ogrzewanie: miejskie

Ciepła woda: gaz

Opłaty miesięczne: 560 zł (fundusz remontowy, eksploatacja)

Forma własności: własnościowy lokal z księgą wieczystą

Termin opuszczenia: do uzgodnienia

Lokal składa się z dwóch pokoi, otwartej kuchni, łazienki z WC, garderoby oraz przedpokoju.

Mieszkanie znajduje się w Czeladzi. Miejsce jest dobrze skomunikowane, otoczone zielenią. Blisko sklepy oraz apteka. Cena zawiera całe wyposażenie kuchni oraz meble w salonie oraz garderobie.

CENA: 254 000 zł


Powyższa oferta ma charakter informacyjny i nie stanowi oferty handlowej w rozumieniu przepisów KC.

Aneta
Zadzwoń do oferenta
Zadzwoń do oferenta: +48 607 965 177
Ogłoszeniodawca nie zgadza się na kontakt agencji nieruchomości.
Powiedz, że znalazłaś/eś ofertę na Bezposrednie.com. Dziękujemy.
Wyślij wiadomość do oferenta
Wyślij wiadomość do oferenta

Zgadzam się też na otrzymanie:

reklama