Mieszkanie na sprzedaż, woj. kujawsko-pomorskie / dodano: 09.11.2025
kujawsko-pomorskie, Bydgoszcz, Okole
Cena: 750 000 PLN  (11 718,75 PLN/m²)
Powierzchnia mieszkalna
64 m²
Liczba pokoi
3
Piętro
5
Liczba pięter
5
Numer oferty
gratka-44975751
Data aktualizacji
2025-11-24 02:10:36
Opis:

Powierzchnia: 63,55 m² | 2 balkony | winda | komórka lokatorska 1,75 m² | opcja miejsca parkingowego w hali garażowej


Na sprzedaż wyjątkowe, dwupoziomowe mieszkanie położone w nowoczesnym bloku z 2017 roku w samym sercu Bydgoszczy. Idealne dla osób ceniących przestrzeń, komfort i bliskość miejskich atrakcji.


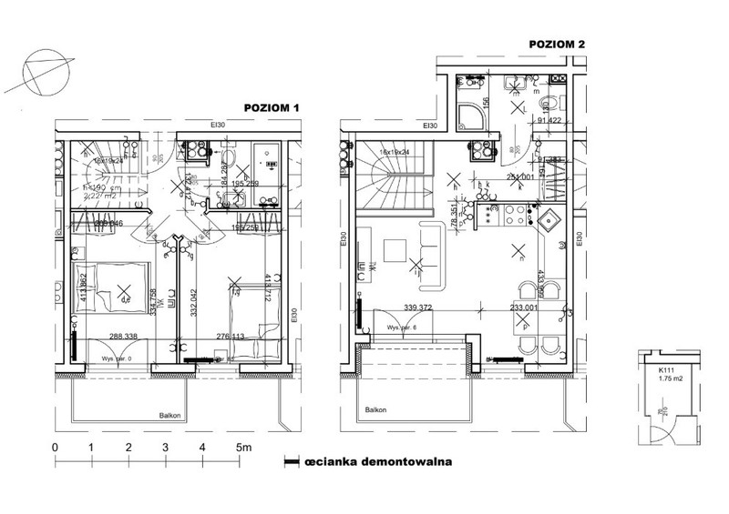
Układ pomieszczeń


Poziom I (4. piętro):

  • Pokój 1 – 11,5 m²
  • Pokój 2 – 11,8 m²
  • Pomieszczenie dodatkowe – 3,5 m² (garderoba / biuro / pomieszczenie gospodarcze, wyciszone – idealne np. do pracy lub jako pralnia)
  • Balkon – 3,74 m²


Poziom II (5. piętro – ostatnie):

  • Salon z aneksem kuchennym – 27,03 m²
  • Kuchnia wykonana na wymiar przez stolarza, w pełni zabudowana i wyposażona w sprzęt AGD.
  • Łazienka z prysznicem – 4,15 m²
  • Taras – 6,02 m² z miejscem na stolik i fotele oraz przepiękną panoramą miasta


Schody prowadzące na drugi poziom również zostały wykonane przez stolarza. W mieszkaniu znajduje się duża szafa w zabudowie Komandor oraz liczne miejsca do przechowywania – m.in. praktyczna przestrzeń pod schodami.


Budynek i udogodnienia

  • Blok z 2017 roku z windą
  • Komórka lokatorska (1,75 m²)
  • Możliwość wykupienia miejsca postojowego w hali garażowej od właściciela mieszkania
  • W budynku znajduje się również taras wspólny dla mieszkańców na 5. piętrze z panoramą miasta
  • Ciche, zadbane i nowoczesne osiedle


Lokalizacja

Mieszkanie położone jest w cichej okolicy, a jednocześnie bardzo blisko centrum:

  • Centrum Handlowe Rondo – 500 m
  • Dworzec PKP – 800 m
  • Opera Nova – 1,4 km
  • Park Kochanowskiego – 3,1 km
  • Park nad Kanałem – 4 min spacerem


W okolicy sklepy (m.in. Biedronka, Lidl), przystanki, restauracje, szkoły, przedszkola – wszystko w zasięgu kilku minut.


Zapraszam do kontaktu i umówienia prezentacji.

To mieszkanie zachwyca przestrzenią, funkcjonalnością i widokiem – zobacz je na żywo!


Proszę, aby pośrednicy nieruchomości nie kontaktowali się w sprawie ogłoszenia. Sprzedaż bezpośrednia.

Marta
Zadzwoń do oferenta
Zadzwoń do oferenta: +48 667 112 624
Ogłoszeniodawca nie zgadza się na kontakt agencji nieruchomości.
Powiedz, że znalazłaś/eś ofertę na Bezposrednie.com. Dziękujemy.
Wyślij wiadomość do oferenta
Wyślij wiadomość do oferenta

Zgadzam się też na otrzymanie:

reklama