Mieszkanie na sprzedaż, woj. Polska / dodano: 05.12.2025
Michała Kleofasa Ogińskiego, mazowieckie, pruszkowski, Piastów
Cena: 635 000 PLN  (11 776,71 PLN/m²)
Powierzchnia mieszkalna
53,92 m²
Czynsz dla adm.
280 PLN
Liczba pokoi
3
Piętro
parter
Rok budowy
2025
Typ domu
inny
Materiał budowlany
cegła
Internet
Tak
Numer oferty
gratka-45290571
Data aktualizacji
2026-02-21 02:00:25
Opis:

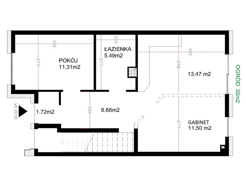
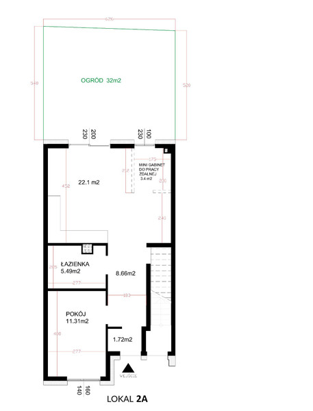
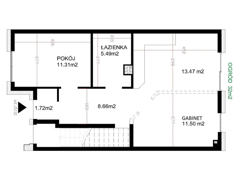
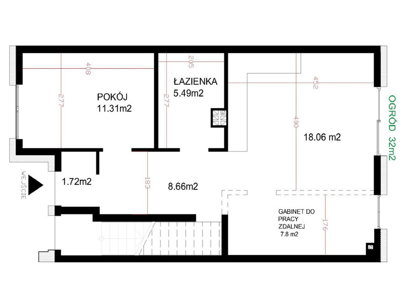
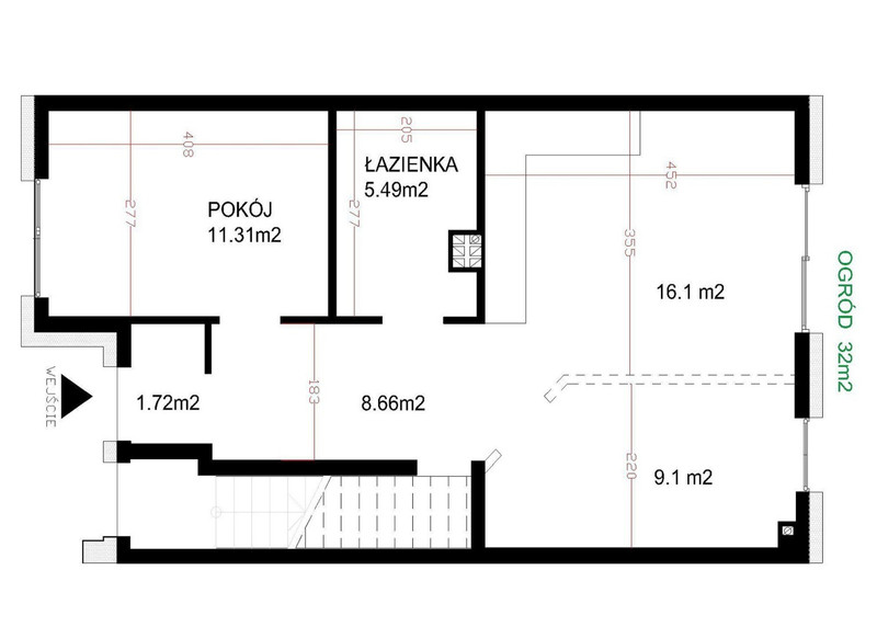
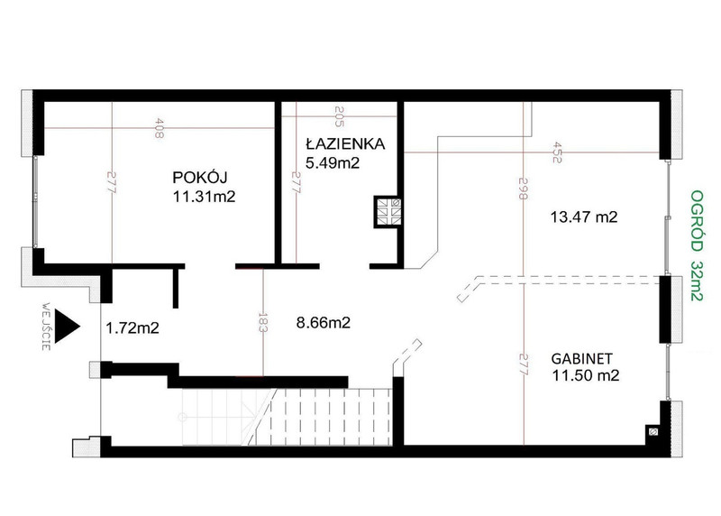
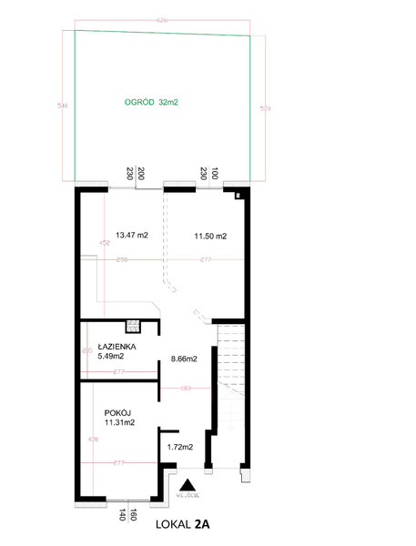
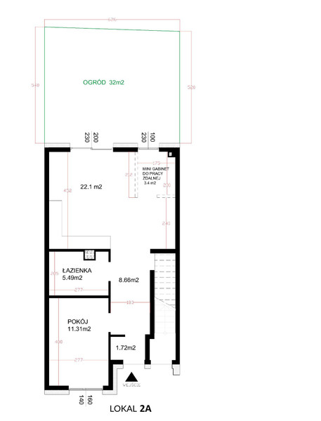
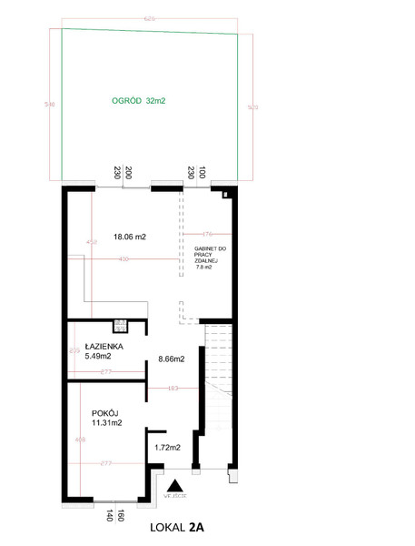
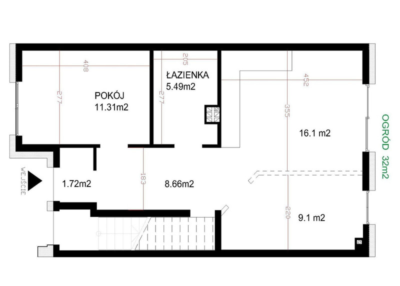
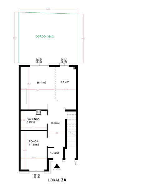
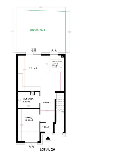
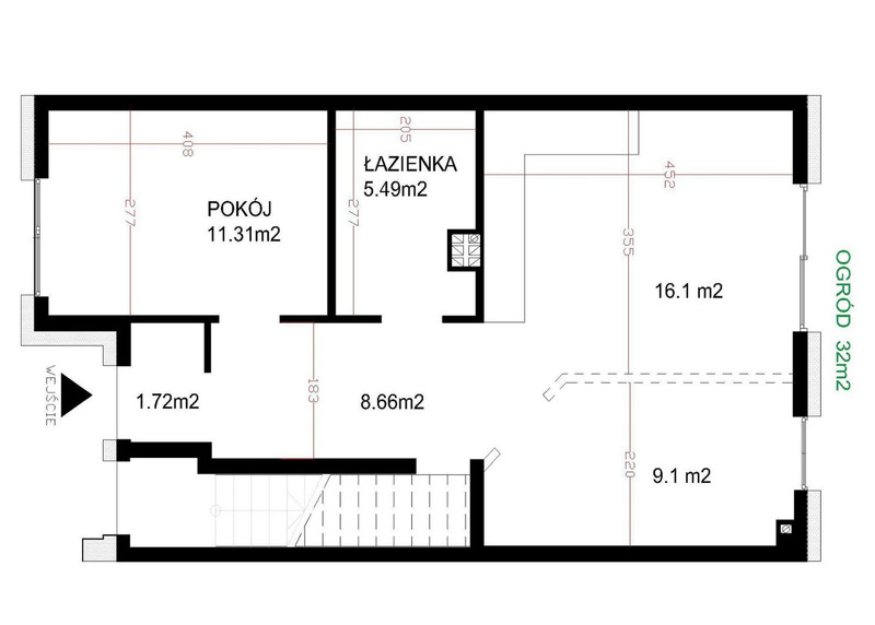
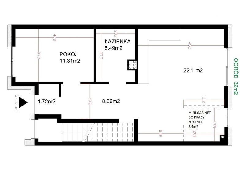
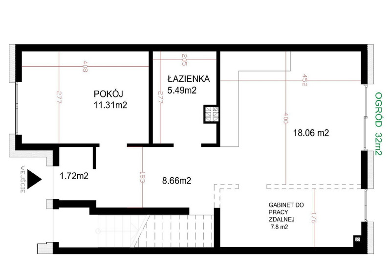
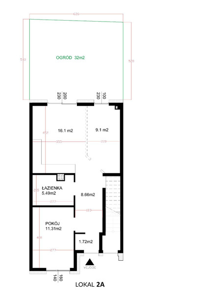
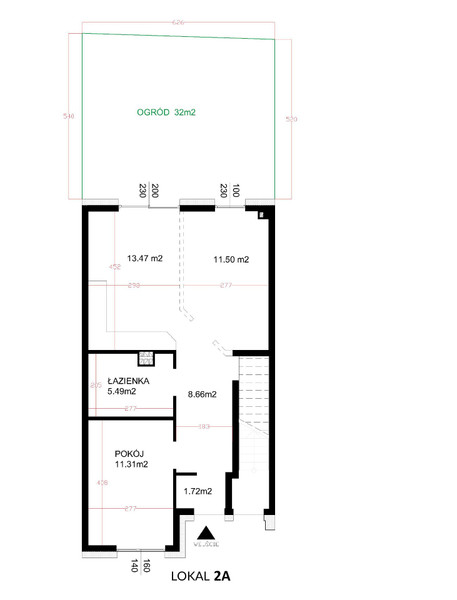
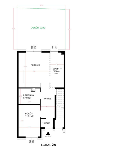
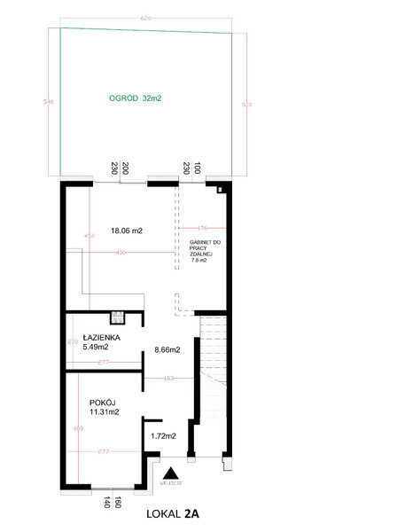
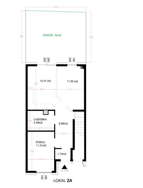
3-pokojowe mieszkanie na parterze z ogródkiem 32 m2 (nr 2A Ścianka wydzielająca trzeci pokój (z pełnowymiarowym oknem balkonowym) jest do wykonania jako zmiana lokatorska (dodatkowo płatna) zgodnie z wytycznymi nabywcy. Opcjonalna dodatkowa ścianka w kilku wariantach została oznaczona na rysunkach linią przerywaną.

Kupujący nie płaci prowizji, sprzedaż obsługiwana jest przez agencje pośrednictwa należącą do dewelopera.

Dużym atutem jest bliskość pętli autobusowej Piastów-Ogińskiego (200 m), z której można dojechać do stacji PKP Piastów w 10 minut. Na ten moment dojście do pętli prowadzi ścieżką, ale w planie miejscowym przewidziana jest droga.

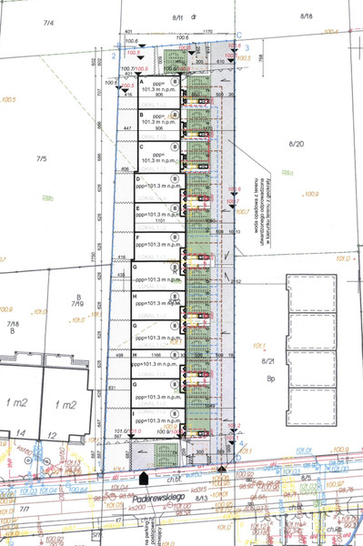
Inwestycja obejmuje 12 budynków dwulokalowych w zabudowie szeregowej. Łącznie 24 lokale:

· 12 z poddaszami (54 m2, po adaptacji poddaszy ok. 87 m2)

· 12 lokali o powierzchni 44–53 m2 z ogródkami ok. 30 m2


Budynki posadowiono na płycie fundamentowej. Zwiększa to trwałość konstrukcji i ogranicza ryzyko powstawania rys, które dość często pojawiają się przy standardowych fundamentach. Dzięki temu budynki są lepiej docieplone.

Inwestycja znajduje się w II strefie ZTM. Mieszkańcy mogą zakupić bilet metropolitalny (obejmujący też transport koleją) w obniżonej cenie 120 zł miesięcznie, zastępujący droższe warszawskie bilety okresowe na strefy I+II.

Przewidywana wysokość opłat administracyjnych to ok. 280 zł miesięcznie (w tym wywóz odpadów komunalnych dla trzyosobowej rodziny, oświetlenie i sprzątanie części wspólnych, fundusz remontowy).

Każde mieszkanie będzie posiadało indywidualne przyłącza mediów: prąd, gaz, internet światłowodowy, woda i kanalizacja miejska. Wymienione media każdy właściciel lokalu rozlicza samodzielnie (tych kosztów indywidualnych nie obejmuje opłata do administratora wspólnoty).


AKTUALNY STAN ZAAWANSOWANIA:

Zakres wykonanych prac: płyty fundamentowe, konstrukcja budynku wraz ze stropami, ściany działowe, dach (konstrukcja wraz z pokryciem), instalacje (gazowe, elektryczne, kanalizacyjne), elewacja, stolarka okienna i drzwiowa, tynki. Uzyskano wszelkie formalne zgody niezbędne do realizacji przyłączy. Obecnie trwa budowa przyłączy.

Zakres prac do wykonania: instalacje ogrzewania wraz z montażem pieców, wylewki, przyłącza (wody, kanalizacji, gazu i energii elektrycznej), zagospodarowanie terenu. Całość kosztów przyłączenia i budowy sieci pokrywa deweloper. Dzięki temu terminy realizacji przyłączy są pewne i niezależne od dostawców mediów. Aktualnie rozpoczęto już prace przyłączeniowe, jednak ich tempo uzależnione jest od pogody. Planowany termin zakończenia prac przyłączeniowych przypada na kwiecień 2026.


OTOCZENIE:

Odległości pokazują rzeczywistą drogę do przebycia.

· Pętla autobusowa Piastów-Ogińskiego (linie 716, 717, N85) - 200 m (Google Maps nie pokazuje tej trasy)

· Stacja PKP Piastów - 2,1 km (10 minut jazdy autobusem z Pętli Piastów-Ogińskiego)

· Dokładna lokalizacja: 5219300263345283, 20828685186902444

· Publiczny żłobek, przedszkole i szkoła podstawowa - kompleks przy

ul. Jarzynowej w Pruszkowie - 1,2 km

· Szkoła podstawowa przy ul. Zbikowskiej w Piastowie – 0,7 km

· Sklep spożywczy - 1,3 km

· Przystanek autobusowy w Pruszkowie (ul. Tuwima, linie 3 i 9) - 1,2 km

· Biedronka - 2,2 km

· Park Kultury i Wypoczynku - 2,8 km


STANDARD DEWELOPERSKI:

· Ściany nośne - bloczki silikatowe

· Ściany nośne między sąsiadującymi ze sobą segmentami - podwójna warstwa bloczka silikatowego, co zapewnia doskonałą izolację akustyczną.

· Okna PVC klasy premium, na profilach marki VEKA o grubości 82 mm (najgrubszy profil Veka – lepsza izolacyjność termiczna, w standardzie profil wzmocniony). Okna trzyszybowe, 7-komorowe, 3 uszczelki, niezawodne okucia Winkhaus

· Ściany wewnętrzne – gazobeton/multigips (8 lub 10 cm)

· Ogrzewanie, ciepła woda użytkowa – w każdym lokalu indywidualny piec dwufunkcyjny z wbudowanym zasobnikiem. Ogrzewanie podłogowe + dodatkowo grzejnik łazienkowy.

· Osobne liczniki na wszystkie media (woda, prąd, gaz)

· Kuchnia - zasilanie trójfazowe (400V)

· Wszystkie budynki są oddzielone ogniomurami (niepalna ściana ponad połacią dachową)

· Tynki – gipsowe, bez gładzi

· Do lokali doprowadzona jest instalacja internetowa światłowodowa

· Biały montaż elektryczny – osprzęt polskiej produkcji (Simon)

· Salon - wyprowadzenie kompletu przewodów pod klimatyzację

· Proponowana dodatkowa ścianka jest wykonywana jako odpłatna zmiana lokatorska


DODATKOWE INFORMACJE:

Teren zamknięty, bramy na pilota oraz instalacja (przewody) do domofonu/wideofonu (urządzenie po stronie nabywcy lub do wykonania przez dewelopera, cena uzależniona od wybranego urządzenia).

Od 15 maja 2026r będzie możliwość udostępnienia mieszkania w celu wykonania prac wykończeniowych. Oficjalny termin wydania lokali nastąpi do 30 lipca 2026 r. Zakończenie prac budowlanych kwiecień 2026, po tym czasie będą trwały formalności związane z uzyskaniem pozwolenia na użytkowanie. Aktualny stan zaawansowania prac 85%.


Miejsce postojowe dodatkowo płatne: 10 000 zł.

Do salonu doprowadzone zostały podtynkowo wszystkie przewody niezbędne do zamontowania klimatyzacji wraz z jednostką zewnętrzną (przewód zasilający, sterujący, rury w izolacji na czynnik chłodniczy oraz rura na odprowadzenie skroplin)

Komfort korzystania z ogródków w przypadku budynków dwulokalowych jest dużo wyższy niż w wielokondygnacyjnych blokach.


BEZPIECZEŃSTWO FINANSOWE:

Państwa pieniądze są chronione na każdym etapie inwestycji:

  • Mieszkaniowe Rachunki Powiernicze: środki są wypłacane transzami dopiero po potwierdzeniu przez inspektora banku zakończenia danego etapu prac
  • Deweloperski Fundusz Gwarancyjny: Każdy nabywca objęty jest dodatkowym systemem ochrony składek.
  • Gwarancja de minimis: Nasze kredyty inwestycyjne zabezpieczone są przez Bank Gospodarstwa Krajowego (BGK), co stanowi dla Nabywców dodatkowe potwierdzenie naszej wiarygodności finansowej.
  • Pełna ochrona ubezpieczeniowa: proces budowlany każdej inwestycji jest w całości ubezpieczony w Compensa TU S.A.



POMIAR POWIERZCHNI:

Zgodnie z aktualnymi przepisami i zasadami etyki, powierzchnie pod ściankami działowymi nie są wliczane do powierzchni użytkowej. Wymiary i powierzchnie zostały pomniejszone o grubość warstw tynkarskich.

DODATKOWE USŁUGI:

Oferujemy również bezpłatne pośrednictwo kredytowe. Od kredytobiorcy potrzebne są jedynie dokumenty związane z uzyskiwanym dochodem, całość dokumentacji mieszkania i inwestycji załatwiamy sami.

Zapraszamy do kontaktu w celu uzyskania szczegółowych informacji oraz umówienia prezentacji inwestycji.

Inwestycja realizowana jest przez „Apartamenty Paderewskiego 10” Sp. z o.o. NIP7011205152 ul. Złota 75A/7, 00-819, Warszawa.

Spółka należy do przedsiębiorstwa „APB Development” Sp. z o.o. NIP5273182155 ul. Złota 75A/7, 00-819, Warszawa.

Ogłoszenie ma charakter informacyjny i nie stanowi oferty handlowej w rozumieniu art. 66 § 1 Kodeksu cywilnego oraz innych właściwych przepisów prawnych.

"Apartamenty Paderewskiego 10" sp. z o.o.
Zadzwoń do oferenta
Zadzwoń do oferenta: +48 720 500 100
Powiedz, że znalazłaś/eś ofertę na Bezposrednie.com. Dziękujemy.
Wyślij wiadomość do oferenta
Wyślij wiadomość do oferenta

Zgadzam się też na otrzymanie:

reklama