Mieszkanie na sprzedaż, woj. zachodniopomorskie / dodano: 16.02.2026
Adama Asnyka, zachodniopomorskie, Szczecin, Niebuszewo
Cena: 519 000 PLN  (8871,79 PLN/m²)
Powierzchnia mieszkalna
58,5 m²
Czynsz dla adm.
508 PLN
Liczba pokoi
2
Piętro
1
Liczba pięter
3
Rok budowy
1936
Materiał budowlany
cegła
Meble
Tak
Piwnica
Tak
Domofon
Tak
Internet
Tak
Prąd
Tak
Gaz
Tak
Woda
Tak
Numer oferty
gratka-46116463
Data aktualizacji
2026-02-22 17:33:56
Opis:

Na sprzedaż bezpośrednio (bez prowizji dla biura nieruchomości) przestronne, dwupokojowe mieszkanie o powierzchni 58,5 m², położone w świetnie skomunikowanej części miasta (dzielnica Niebuszewo-Bolinko na granicy Śródmieścia.).


Mieszkanie jest w pełni własnościowe, posiada założoną Księgę Wieczystą (brak obciążeń), a niski czynsz sprawia, że jest to doskonała oferta zarówno dla rodziny, jak i jako inwestycja pod wynajem.

Sprzedaję lokal z pełnym wyposażeniem – gotowy do wprowadzenia lub wynajęcia od zaraz!


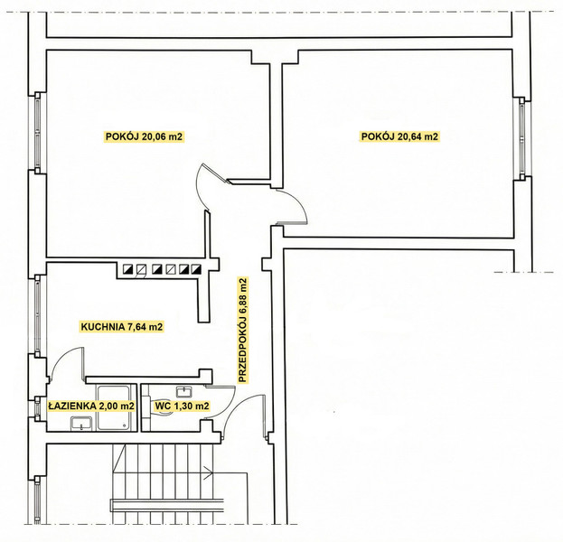
UKŁAD POMIESZCZEŃ:

Mieszkanie charakteryzuje się bardzo funkcjonalnym rozkładem oraz dużą powierzchnią pokoi. Dzięki dwustronnej ekspozycji (południowy zachód – północny wschód) wnętrze jest jasne i słoneczne przez cały dzień. W skład mieszkania wchodzą:

  • Pokój 1 (Salono-sypialnia): 20,64 m² – przestronny i ustawny.
  • Pokój 2: 20,06 m² – idealny na sypialnię lub pokój dziecięcy.
  • Kuchnia: 7,64 m² – widna i oddzielna.
  • Przedpokój: 6,88 m².
  • Łazienka: 2 m².
  • WC: 1,3 m² (osobne, co zwiększa komfort użytkowania).


LOKALIZACJA I KOMUNIKACJA: To jeden z największych atutów tej nieruchomości.

Mieszkanie jest wyśmienicie skomunikowane z resztą miasta:

  • Tramwaje: linie 2, 11.
  • Autobusy: linie 51, 57, 63, 78, 82, 87, 92, 99.
  • SKM: Zaledwie 140 m od budynku znajduje się dworzec Szczecin Niebuszewo, gdzie na przełomie 2026/2027 planowane jest oddanie węzła Szczecińskiej Kolei Metropolitalnej. To gwarantuje błyskawiczny dojazd do centrum i wzrost wartości nieruchomości w przyszłości.

Mimo bliskości węzłów komunikacyjnych, mieszkanie oferuje komfort i ciszę, będąc idealnym azylem blisko centrum.


OPŁATY: Mieszkanie jest bardzo tanie w utrzymaniu.

Czynsz administracyjny wynosi zaledwie 508 zł miesięcznie i zawiera już fundusz remontowy.


DODATKOWE ATUTY:

  • Pełne wyposażenie w cenie.
  • Osobna toaleta i łazienka.
  • Mieszkanie ciepłe i słoneczne.
  • Bardzo prężna wspólnota - budynek ocieplony, świeżo pomalowany, wymienione piony, pięknie wyremontowana klatka schodowa.


Zapraszam do kontaktu i na prezentację mieszkania.

Przemysław
Zadzwoń do oferenta
Zadzwoń do oferenta: +48 795 589 495
Ogłoszeniodawca nie zgadza się na kontakt agencji nieruchomości.
Powiedz, że znalazłaś/eś ofertę na Bezposrednie.com. Dziękujemy.
Wyślij wiadomość do oferenta
Wyślij wiadomość do oferenta

Zgadzam się też na otrzymanie:

reklama