Mieszkanie na sprzedaż, woj. małopolskie / dodano: 21.03.2026
Kasztanowa, małopolskie, Tarnów, Mościce
Cena: 295 885 PLN  (8500 PLN/m²)
Powierzchnia mieszkalna
34,81 m²
Liczba pokoi
2
Piętro
2
Liczba pięter
2
Forma własności
własność
Rok budowy
1956
Typ domu
inny
Materiał budowlany
cegła
Piwnica
Tak
Domofon
Tak
Numer oferty
gratka-46353201
Data aktualizacji
2026-03-23 11:49:52
Opis:

Na sprzedaż ciche i słoneczne mieszkanie 2-pokojowe o pow. 34,81 m2 przy ul. Kasztanowej, zaledwie parę kroków od parku.

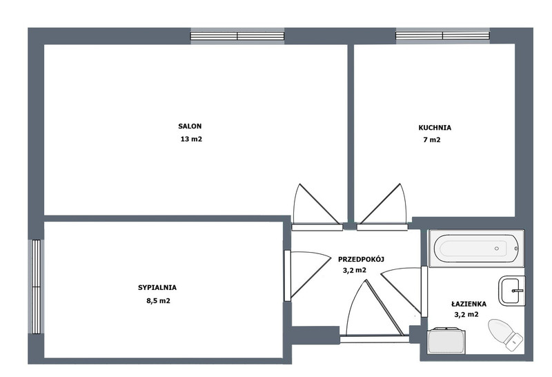
Mieszkanie zostało praktycznie zaaranżowane i składa się z:

  • oddzielnej sypialni z oknem (wschód)
  • niezależnego salonu z oknem (południe)
  • widnej, osobnej kuchni z oknem (południe)
  • łazienki z wanną i wc
  • przedpokoju

Dodatkowym atutem są pojemne pawlacze w kuchni i przedpokoju, które zapewniają wygodną przestrzeń do przechowywania.

W pokojach na podłodze znajduje się zadbany, drewniany parkiet, który nadaje wnętrzu ciepły i elegancki charakter. W kuchni, łazience i przedpokoju – praktyczna terakota.

Mieszkanie jest pełne naturalnego światła dzięki oknom wychodzącym na dwie strony świata (południe i wschód). Znajduje się na 2. (ostatnim) piętrze, co zapewnia ciszę i brak sąsiadów nad głową. Układ idealny zarówno dla rodziny, jak i jako pewna inwestycja pod wynajem, ponieważ są dwa niezależne pokoje. Do mieszkania przynależy piwnica (w cenie mieszkania).

Wysokość mieszkania to 277 cm.


Standard i budynek:

· niski blok 2 piętrowy

· wymieniona instalacja elektryczna

· okna PCV + rolety dzień/noc

· wymienione instalacje wodno-kanalizacyjne i zmodernizowane CO (nowe grzejniki)

· budynek po termomodernizacji

· kameralna klatka – tylko 3 mieszkania na piętrze

· domofon

· wszystkie media miejskie


Lokalizacja – Mościce:

Spokojna, zielona okolica z dużą ilością starodrzewia, przyjaznym otoczeniem i z pełną infrastrukturą:

· sklepy spożywcze, Biedronka, Lidl, piekarnia, usługi, kawiarnie, apteka, przychodnia, bazarek

· szkoły, przedszkola, basen, lodowisko, kino, park i tereny zielone w zasięgu spaceru

· dobra komunikacja z centrum miasta - zarówno autobusem jak i samochodem

· w sąsiedztwie niskie bloki, miejsca parkingowe ogólnodostępne w okolicy budynku.


Stan prawny: pełna własność + księga wieczysta (możliwy kredyt)

Oferta bezpośrednia – proszę o kontakt wyłącznie osoby prywatne, współpraca z biurami nieruchomości do rozważenia w przypadku konkretnego klienta.

Marta
Zadzwoń do oferenta
Zadzwoń do oferenta: +48 502 374 669
Ogłoszeniodawca nie zgadza się na kontakt agencji nieruchomości.
Powiedz, że znalazłaś/eś ofertę na Bezposrednie.com. Dziękujemy.
Wyślij wiadomość do oferenta
Wyślij wiadomość do oferenta

Zgadzam się też na otrzymanie:

reklama