Mieszkanie na sprzedaż, woj. mazowieckie / dodano: 25.01.2026
Władysława Broniewskiego, mazowieckie, Warszawa, Bielany
Cena: 900 000 PLN  (16 042,78 PLN/m²)
Powierzchnia mieszkalna
56,1 m²
Liczba pokoi
3
Piętro
3
Liczba pięter
9
Numer oferty
gratka-45845469
Data aktualizacji
2026-02-09 02:03:53
Opis:

Sprzedam bezpośrednio nowoczesne 3-pokojowe mieszkanie na Bielanach. Lokal po gruntownym remoncie, nowa łazienka podłogi, drzwi, gładzie na ścianach, nowa instalacja elektryczna okna plastikowe - kuchnia wyposażona w nowe sprzęty na gwarancji(płyta, piekarnik, zmywarka, wyciąg) . Rozkładowy układ mieszkania oraz częściowo otwarta kuchnia sprawia że mieszkanie jest przestronne i pełne światła - pociąga to za sobą poczucie komfortu w poruszaniu się wewnątrz. Mieszkanie jest funkcjonalne i bardzo dobrze nasłonecznione. Lokal został wykończony z wysokiej jakości materiałów. Budynek w dobrym stanie technicznym, przeszedł wszelkie niezbędne renowacje, teren wokół bloku jest zadbany i pełen zieleni. Mieszkanie otacza bardzo dobra infrastruktura komunikacji miejskiej (autobusy, tramwaje,metro). W bliskiej okolicy znajdują się liczne szkoły, przedszkola, żłobki, apteki, restauracje, piekarnie, sklepy oraz lokale usługowe.

Forma własności: pełna własność lokal wyodrębniony z księgą wieczystą bez obciążeń

Piętro 3, 2 windy

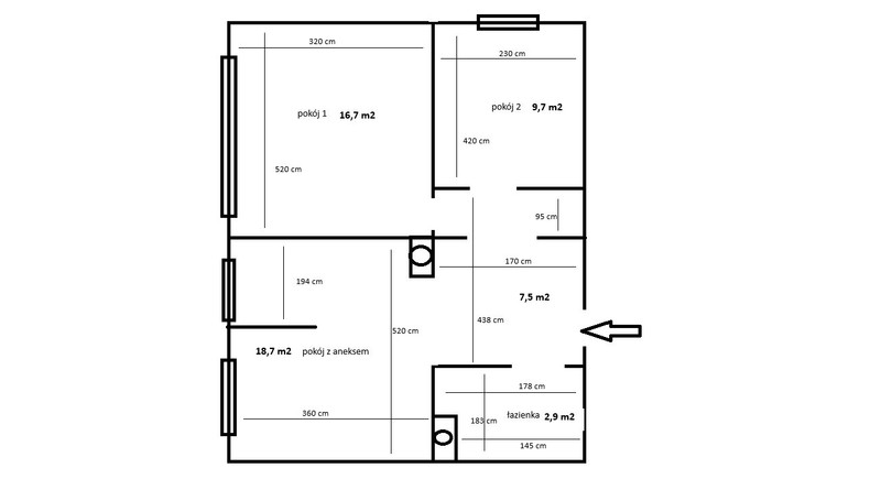
W skład lokalu wchodzi:

- salon z aneksem kuchennym

- pokój I

- pokój II

- łazienka z toaletą

- przedpokój

- balkon

- do mieszkania przynależy piwnica o pow. 1,90 m2

- tuż obok bloku znajduje się parking ogólnodostępny oraz wydzielony szlabanem dla mieszkańców

Lokalizacja:

skrzyżowanie ulic Raymonta i Broniewskiego

Komunikacja:

- 3 min do przystanku autobusowego

- 3 min do przystanku tramwajowego

- 10 min do Metro Wawrzyszew

Zapraszam do kontaktu osoby zainteresowane - pośrednikom dziękuję

Piotr
Zadzwoń do oferenta
Zadzwoń do oferenta: +48 510 196 803
Ogłoszeniodawca nie zgadza się na kontakt agencji nieruchomości.
Powiedz, że znalazłaś/eś ofertę na Bezposrednie.com. Dziękujemy.
Wyślij wiadomość do oferenta
Wyślij wiadomość do oferenta

Zgadzam się też na otrzymanie:

reklama