Mieszkanie na sprzedaż, woj. mazowieckie / dodano: 18.10.2025
Bluszczańska, mazowieckie, Warszawa, Mokotów
Cena: 1 100 000 PLN  (21 782,18 PLN/m²)
Powierzchnia mieszkalna
50,5 m²
Liczba pokoi
2
Piętro
1
Liczba pięter
3
Rok budowy
2007
Meble
Tak
Winda
Tak
Czy zamknięty obiekt
Tak
Domofon
Tak
Balkon
Tak
Numer oferty
gratka-44658653
Data aktualizacji
2025-11-03 10:42:10
Opis:

Na sprzedaż, bezpośrednio od właściciela, komfortowe i ciche mieszkanie o powierzchni 50,51 m² (dodatkowo balkon 5,48 m²), zlokalizowane w inwestycji River House przy ul. Bluszczańskiej.


Mieszkanie jest umeblowane i wyposażone (pralka, zmywarka, piekarnik, lodówka, telewizor), wykończone w wysokim standardzie, z meblami robionymi na wymiar. Znajduje się na osiedlu strzeżonym z monitoringiem i całodobową ochroną. W budynku zgaduje się winda. Budynek wybudowany w 2007 roku.


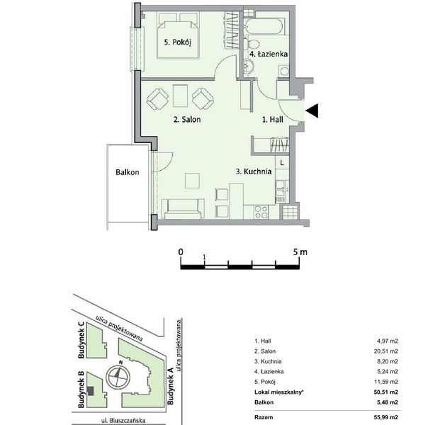
Metraż pomieszczeń:

  • Hall : 4,97 m2
  • Salon : 20,51 m2
  • Kuchnia : 8,20 m2
  • Łazienka : 5,24 m2
  • Pokój : 11,59 m2
  • Balkon: 5,48 m2


Lokalizacja i otoczenie: Mieszkanie znajduje się w spokojnej, zielonej okolicy z dobrą infrastrukturą. W pobliżu zlokalizowane są sklepy, restauracje, kawiarnie, przedszkola i apteki. Mieszkańców docenią także bliskość terenów rekreacyjnych, takich jak Łazienki Królewskie i Kopiec Powstania Warszawskiego. Zapewniona jest dobra komunikacja do centrum dzięki pobliskim liniom autobusowym i tramwajom.


Do mieszkania przynależy miejsce parkingowe w garażu podziemnym, dodatkowo płatne 50 000 zł.


Cena do negocjacji.

Kamila
Zadzwoń do oferenta
Zadzwoń do oferenta: +48 696 067 303
Ogłoszeniodawca nie zgadza się na kontakt agencji nieruchomości.
Powiedz, że znalazłaś/eś ofertę na Bezposrednie.com. Dziękujemy.
Wyślij wiadomość do oferenta
Wyślij wiadomość do oferenta

Zgadzam się też na otrzymanie:

reklama