Mieszkanie na sprzedaż, woj. mazowieckie / dodano: 29.12.2025
Władysława Broniewskiego, mazowieckie, Warszawa, Żoliborz
Cena: 849 000 PLN  (15 026,55 PLN/m²)
Powierzchnia mieszkalna
56,5 m²
Liczba pokoi
3
Piętro
parter
Liczba pięter
4
Numer oferty
gratka-45525135
Data aktualizacji
2026-01-13 02:02:22
Opis:

BEZPOŚREDNIO

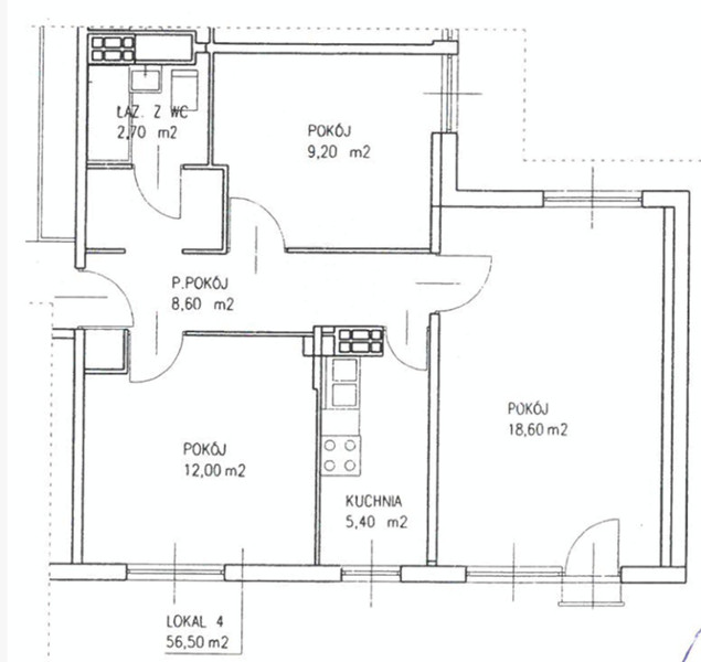
Metraż: 56,5 m2

Liczba pokoi: 3

Piętro: wysoki parter

Budynek: 4-piętrowy bez windy

Forma własności: spółdzielcze własnościowe

Rok budowy: 1967

Dodatkowo: komórka lokatorska (3,9m2)

Czynsz ok. 920 zł.


Na sprzedaż funkcjonalne mieszkanie z dużym potencjałem aranżacyjnym, położone na wysokim parterze w niskim, czteropiętrowym budynku.

Lokal składa się z:

  • jasnego salonu z wyjściem na balkonik
  • 2 pokoi (sypialni/gabinetu)
  • oddzielnej kuchni
  • łazienki
  • przedpokoju


Do mieszkania przynależy komórka lokatorska o powierzchni 3,9m2.


Mieszkanie jest dwustronne, dobrze doświetlone. Nowo wymienione wszystkie okna.

Z okien rozpościera się widok na zieleń, drzewa i roślinność, co zapewnia prywatność i spokój. Bezpośrednio przed budynkiem znajduje się plac z piaskownicą.


Stan: do remontu – idealne dla osób, które chcą urządzić wnętrze według własnego gustu lub pod inwestycję. W załączniku wizualizacja pomieszczeń.


Odległości i komunikacja (pieszo / komunikacją)

  • Sady Żoliborskie – ok. 8 minut pieszo
  • Szkoła podstawowa – ok. 5–7 minut pieszo
  • Przedszkole – ok. 5 minut pieszo
  • Sklepy spożywcze (Auchan, Żabka, Biedronka, lokalne sklepy) – ok. 3–5 minut pieszo
  • Park Olszyna – ok. 10 minut pieszo
  • Przystanek tramwajowy / autobusowy (ul. Broniewskiego) – ok. 2–3 minuty pieszo
  • Centrum Warszawy (Śródmieście) – ok. 15–20 minut komunikacją miejską


Linie tramwajowe - W bezpośredniej okolicy kursują m.in. tramwaje: 1, 17, 22, 27, 28, 33

Zapewniają szybkie połączenia m.in. z:

  • Centrum
  • Żoliborzem
  • Wolą
  • Bielanami
  • Bemowem





Irena
Zadzwoń do oferenta
Zadzwoń do oferenta: +48 725 903 452
Ogłoszeniodawca nie zgadza się na kontakt agencji nieruchomości.
Powiedz, że znalazłaś/eś ofertę na Bezposrednie.com. Dziękujemy.
Wyślij wiadomość do oferenta
Wyślij wiadomość do oferenta

Zgadzam się też na otrzymanie:

reklama