Mieszkanie na sprzedaż, woj. mazowieckie / dodano: 25.11.2025
Dzieci Warszawy, mazowieckie, Warszawa, Ursus
Cena: 849 000 PLN  (14 947,18 PLN/m²)
Powierzchnia mieszkalna
56,8 m²
Liczba pokoi
2
Piętro
1
Liczba pięter
6
Numer oferty
gratka-45164243
Data aktualizacji
2025-11-25 10:33:53
Opis:

>>>Na sprzedaż w pięknie urządzone mieszkanie o powierzchni 56,8 m z balkonem i garażem bezpośrednio od właściciela<<<


Atuty nieruchomości:

Gotowe do wprowadzenia – mieszkanie jest wykończone i urządzone, gotowe do wprowadzenia - nie wymaga żadnego nakładu - wystarczy przynieść swoje rzeczy osobiste. Pachnie nowością i świeżością - po remoncie nikt nie mieszkał. Zdjęcia przedstawiają rzeczywisty wygląd mieszkania.

W pełni wyposażone - wszystkie meble i sprzęty są nowe. Zabudowa kuchenna, łazienkowa oraz szafy wnękowe - robione na wymiar przez stolarza.

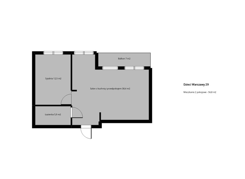
Funkcjonalny układ – salon połączony z widną kuchnią tworzy przestronną strefę o powierzchni ok. 38,4m2, sypialnia (ok. 12,5m2), łazienka (ok. 5,9m2), balkon (ok. 7m2).

Położenie – okna skierowane na południowy zachód, co sprawia, że jest słoneczne i jasne - słońce zagląda tu przez większą część dnia. Do tego cisza i spokój, ponieważ okna wychodzą na wewnętrzny deptak.


Osiedle i okolica:

Osiedle – zadbane i czyste, z całodobową ochroną. Duża ilość zieleni i sporo ogólnodostępnych miejsc parkingowych.

Lokalizacja – wszędzie blisko - przystanki autobusowe 2 min. od bloku (linie autobusowe: 129, 191, 202, 207, 220, 401, 517), wokół sklepy, punkty usługowe, przedszkola i szkoły. Blisko PKP Ursus, węzeł Salomea z dobrym wjazdem na A2, S8 itp. Blisko parki: Achera, Czechowicki, Cietrzewia, Fort Włochy.


Dodatkowe informacje:

Pełna własność z księgą wieczystą bez obciążeń. Możliwość posiłkowania się kredytem

Do mieszkania przynależy miejsce parkingowe w garażu podziemnym płatne dodatkowo 45.000 zł (zakup obligatoryjny).

Całe wyposażenie ruchome mieszkania widoczne na zdjęciach dodatkowo płatne 40.000 zł (zakup obligatoryjny).

Mieszkanie dostępne i gotowe do wprowadzenia.


Zapraszam do kontaktu od 8 do 20 (jeśli nie odbieram, proszę o sms - oddzwonię).


Ogłoszenie bezpośrednio od właściciela, bez prowizji. Nie współpracuję z agencjami.


Nie wyrażam zgody na kopiowanie/wykorzystywanie treści ogłoszenia oraz zdjęć.

Niniejsze ogłoszenie jest wyłącznie informacją handlową i nie stanowi oferty w myśl art. 66 §1 Kodeksu cywilnego.

Iwona
Zadzwoń do oferenta
Zadzwoń do oferenta: +48 500 211 219
Ogłoszeniodawca nie zgadza się na kontakt agencji nieruchomości.
Powiedz, że znalazłaś/eś ofertę na Bezposrednie.com. Dziękujemy.
Wyślij wiadomość do oferenta
Wyślij wiadomość do oferenta

Zgadzam się też na otrzymanie:

reklama