Mieszkanie na sprzedaż, woj. mazowieckie / dodano: 22.01.2026
Orląt Lwowskich, mazowieckie, Warszawa, Ursus
Cena: 590 000 PLN  (12 240,66 PLN/m²)
Powierzchnia mieszkalna
48,2 m²
Liczba pokoi
2
Piętro
2
Liczba pięter
4
Numer oferty
gratka-45810421
Data aktualizacji
2026-02-06 02:05:42
Opis:

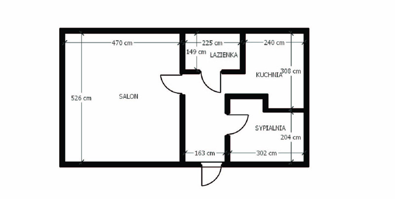
Oferuję funkcjonalne, dwupokojowe mieszkanie z oddzielną, widną kuchnią o powierzchni 48,2m², Położone na drugim piętrze czteropiętrowego bloku na zielonym osiedlu Ursus-Niedźwiadek na ul. Orląt Lwowskich 48 w Warszawie. Mieszkanie posiada mały balkon, a do lokalu przynależy komórka lokatorska (w cenie!). Układ mieszkania jest dwustronny (wschód–zachód), a wszystkie pomieszczenia są nieprzechodnie, co zapewnia wygodę i prywatność. W mieszkaniu około pół roku temu zostały wymienione okna i zamontowane rolety. Pozostawienie mebli i wyposażenia mieszkania do uzgodnienia.


Układ pomieszczeń:


- sypialna,

- duży salon, który wcześniej był podzielony na dwa mniejsze pokoje — istnieje możliwość łatwego przywrócenia pierwotnego układu poprzez postawienie ścianki działowej,

- oddzielna, widna kuchnia,

- łazienka z wanną,

- przedpokój.


Lokalizacja:


Osiedle Ursus-Niedźwiadek to spokojna, zielona i dobrze skomunikowana dzielnica z pełną infrastrukturą. W okolicy znajdują się liczne sklepy, punkty usługowe, szkoły, przedszkola i tereny rekreacyjne.


W najbliższym otoczeniu:


Stacja PKP Ursus-Niedźwiadek – 350 m

Przystanek autobusowy – 100 m

Biedronka – 260 m

Apteka – 200 m

Żłobek i przedszkola – 280 m

Szkoła podstawowa – 400 m

Siłownia – 400 m

Galeria Ursus – 750 m

Park Hassów – 1 km

Dojazd do centrum Warszawy zajmuje około 20 minut pociągiem. W pobliżu znajduje się również dogodny wjazd na trasy S2 i S8.

Nieruchomość

Budynek z 1977 roku, czteropiętrowy, bez windy

Pod blokiem – parking ogólnodostępny

W odległości ok. 150 m – parking Parkuj i Jedź z możliwością wynajęcia miejsca za 200 zł

Zalety mieszkania

Spółdzielcze własnościowe prawo do lokalu

Dwustronne (wschód–zachód)

Brak pomieszczeń przechodnich

Możliwość wydzielenia trzeciego pokoju

Doskonała komunikacja: PKP oraz autobusy 177, 187, 194, 401, 517, 716, N35, N85

W pobliżu sklepy, punkty usługowe, edukacyjne i rekreacyjne

Zielona, spokojna okolica


Mieszkanie dostępne od zaraz. Sprzedaż bezpośrednia. Nie szukamy pośrednika sprzedaży.

Zapraszamy do kontaktu zainteresowane kupnem lub pośredników z klientem.

Katarzyna
Zadzwoń do oferenta
Zadzwoń do oferenta: +48 503 539 534
Ogłoszeniodawca nie zgadza się na kontakt agencji nieruchomości.
Powiedz, że znalazłaś/eś ofertę na Bezposrednie.com. Dziękujemy.
Wyślij wiadomość do oferenta
Wyślij wiadomość do oferenta

Zgadzam się też na otrzymanie:

reklama