Mieszkanie na sprzedaż, woj. mazowieckie / dodano: 23.03.2026
Jana Kazimierza, mazowieckie, Warszawa, Wola
Cena: 2 388 900 PLN  (24 376,53 PLN/m²)
Powierzchnia mieszkalna
98 m²
Liczba pokoi
4
Piętro
3
Liczba pięter
8
Typ domu
inny
Numer oferty
gratka-46389707
Data aktualizacji
2026-04-07 02:11:37
Opis:

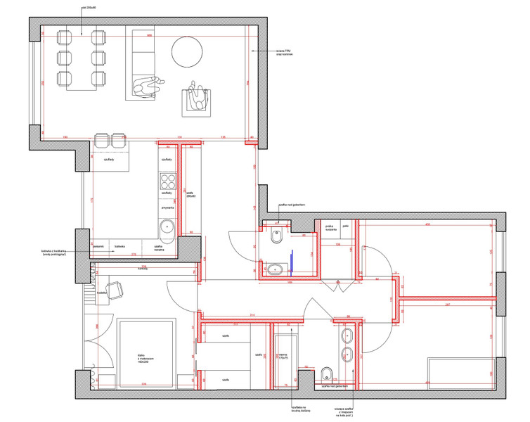
Na sprzedaż bezpośrednio 4-pokojowe mieszkanie o powierzchni 97,4 m², położone na warszawskiej Woli, w początkowej części ul. Jana Kazimierza, na 3. piętrze w budynku z 2016 roku.


Lokal jest dwustronny, bardzo ustawny i dobrze doświetlony. Ekspozycja okien wschód-zachód zapewnia naturalne światło przez cały dzień oraz dobrą cyrkulację powietrza. Salon z kuchnią oraz główna sypialnia wychodzą na zachód, natomiast dwa pokoje dziecięce na wschód, na patio. Mieszkanie jest ciche i gotowe do wprowadzenia.


Układ mieszkania jest bardzo funkcjonalny dla rodziny 2+2. W skład lokalu wchodzą: przestronny salon połączony z kuchnią, 3 sypialnie, osobna garderoba, 2 łazienki, pralnia/suszarnia oraz korytarz z szafami wnękowymi.


Najważniejsze atuty mieszkania:

  • 97,4 m² dobrze wykorzystanej powierzchni
  • duży balkon o powierzchni ok. 14 m²
  • 2 w pełni funkcjonalne łazienki: jedna z prysznicem i WC, druga z wanną i WC
  • osobna garderoba
  • oddzielna pralnia z miejscem na pralkę i suszarkę
  • klimatyzacja w salonie i sypialni
  • zabudowy wykonane na wymiar
  • w cenie pozostają wszystkie meble w zabudowie oraz AGD wbudowane
  • sypialnia przystosowana również do pracy zdalnej
  • mieszkanie gotowe do zamieszkania


Do mieszkania przynależą:

  • komórka lokatorska o powierzchni 9,37 m², z dodatkowo wykonaną antresolą zwiększającą przestrzeń do przechowywania o ok 70%
  • miejsce postojowe w garażu podziemnym


Sprzedaż obejmuje cały pakiet: mieszkanie, komórkę lokatorską oraz miejsce postojowe.

Budynek posiada windę, ochronę, monitoring, recepcję, patio oraz teren zamknięty.


Cena mieszkania: 2 288 900

Cena komórki lokatorskiej: 50 000 zł

Cena miejsca postojowego: 50 000 zł

Cena łączna: 2 388 900

Cena za m²: 23 500 zł/m²


Lokalizacja zapewnia bardzo dobrą komunikację:

  • ok. 400 m do przystanku tramwajowego
  • ok. 2 km do stacji metra Rondo Daszyńskiego
  • dojazd door-to-door do centrum zajmuje ok. 20 minut
  • odległość do ścisłego centrum Warszawy to ok. 4 km


Mieszkanie własnościowe, z założoną księgą wieczystą.

Dostępność: od 1 września.

Sprzedaż bezpośrednia.


515-146-477,501-049-607

Michał
Zadzwoń do oferenta
Zadzwoń do oferenta: +48 515 146 477
Ogłoszeniodawca nie zgadza się na kontakt agencji nieruchomości.
Powiedz, że znalazłaś/eś ofertę na Bezposrednie.com. Dziękujemy.
Wyślij wiadomość do oferenta
Wyślij wiadomość do oferenta

Zgadzam się też na otrzymanie:

reklama