Mieszkanie do wynajęcia, woj. małopolskie / dodano: 06.01.2026
Piekarska, małopolskie, Kraków, Stare Miasto, Kazimierz
Cena: 2200 PLN  (73,33 PLN/m²)
Powierzchnia mieszkalna
30 m²
Czynsz dla adm.
535 PLN
Liczba pokoi
1
Piętro
parter
Liczba pięter
3
Rok budowy
1975
Materiał budowlany
cegła
Meble
Tak
Piwnica
Tak
Domofon
Tak
Internet
Tak
Prąd
Tak
Gaz
Tak
Woda
Tak
Numer oferty
gratka-45617115
Data aktualizacji
2026-01-06 09:26:02
Opis:

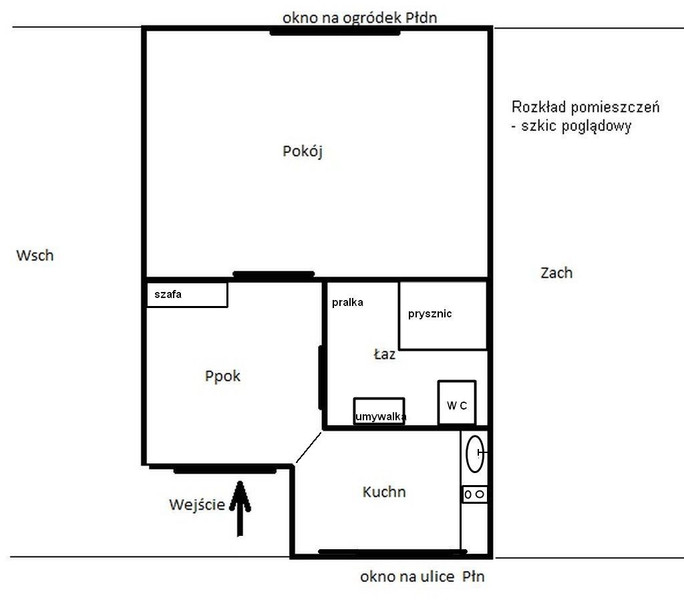
Dz.Kazimierz, ul.Piekarska wynajmę na dłużej mieszkanie 30 m2, położone na parterze w bloku 3 piętrowym. Mieszkanie składa się z przedpokoju, osobnej kuchni z oknem, łazienki i 1_pokoju 16 m2. Ogrzewanie miejskie. Okna plastikowe, żaluzje, drzwi antywłamaniowe, domofon. Na podłodze w pokoju panele, w przedpokoju i kuchni terakota. W przedpokoju wbudowana szafa z lustrem. W łazience flizy, kabina prysznicowa, pralka. W kuchni wbudowane szafki, kuchenka gazowa bez piekarnika, mikrofalówka, lodówka, stół, krzesła. W pokoju łóżko, stół, komoda, regał, lustro. Ściany białe. Jest piwnica ok 3m2. RTV i Internet światłowodowy - umowa na najemcę mieszkania. Super lokalizacja, wszędzie blisko, cicho i bezpiecznie - to serce miasta.

Miesięczne koszty najmu: czynsz 2200zł + 535zł opłaty spółdzielni (w tym ogrzewanie, zimna woda, śmieci itp.), + prąd i gaz wg licznika (ostatnio było ok 100-150zł). Razem 2850 zł miesięcznie.

Kaucja zwrotna 2200zł. Mieszkanie czeka dostępne, zapraszam.


Stefan
Zadzwoń do oferenta
Zadzwoń do oferenta: +48 608 554 053
Ogłoszeniodawca nie zgadza się na kontakt agencji nieruchomości.
Powiedz, że znalazłaś/eś ofertę na Bezposrednie.com. Dziękujemy.
Wyślij wiadomość do oferenta
Wyślij wiadomość do oferenta

Zgadzam się też na otrzymanie:

reklama