Mieszkanie do wynajęcia, woj. mazowieckie / dodano: 06.01.2026
Tadeusza Gajcego, mazowieckie, Warszawa, Bielany
Cena: 3720 PLN  (79,15 PLN/m²)
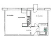
Powierzchnia mieszkalna
47 m²
Liczba pokoi
2
Piętro
5
Liczba pięter
10
Numer oferty
gratka-45617005
Data aktualizacji
2026-01-06 09:10:58
Opis:

Wynajmę mieszkanie na Bielanach:


- 47 m2, 2 pokoje (sypialnia i pokój dzienny połączony z kuchnią), mały balkon, łazienka z wanną,


- ul. Tadeusza Gajcego, piętro 5 z 10, blok z lat 70-tych, 2 windy,


- okolica spacerem: metro Młociny – 5 minut, Galeria Młociny – 10 minut; przedszkole, szkoła podstawowa i duży plac zabaw pod blokiem, w okolicy sklepy spożywcze (Lidl, Biedronka, Społem), piekarnie, sklep mięsny, Rossmann, Pepco, siłownia Zdrofit itp.


- mieszkanie dostępne od zaraz, umowa najmu okazjonalnego na minimum 12 miesięcy,


- opłaty: czynsz 3.000 zł, czynsz administracyjny i zaliczki na media: 720 zł, prąd płatny wg zużycia na podstawie faktur z Eon.


Wolałabym kogoś, kto nie robi imprez do białego rana i nie ma zwierząt.


Anna
Zadzwoń do oferenta
Zadzwoń do oferenta: +48 604 050 683
Ogłoszeniodawca nie zgadza się na kontakt agencji nieruchomości.
Powiedz, że znalazłaś/eś ofertę na Bezposrednie.com. Dziękujemy.
Wyślij wiadomość do oferenta
Wyślij wiadomość do oferenta

Zgadzam się też na otrzymanie:

reklama