Mieszkanie do wynajęcia, woj. mazowieckie / dodano: 29.10.2025
Wiejska, mazowieckie, Warszawa, Śródmieście
Cena: 15 000 PLN  (96,09 PLN/m²)
Powierzchnia mieszkalna
156,1 m²
Liczba pokoi
3
Piętro
4
Liczba pięter
4
Typ domu
inny
Numer oferty
gratka-44591353
Data aktualizacji
2026-05-06 09:10:55
Opis:

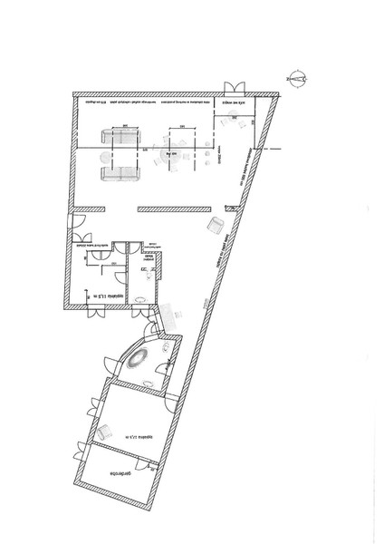
Przestronne, klimatyczne mieszkanie usytuowane na ostatnim, czwartym piętrze eleganckiej kamienicy z windą przy ul. Wiejskiej 13.


Lokal został wykończony w prostym, funkcjonalnym stylu, idealnym do indywidualnej aranżacji.

Centralnym punktem mieszkania jest ponad 70-metrowy salon z aneksem kuchennym, położony od strony wschodniej – ul. Wiejskiej.


Do dyspozycji mieszkańców są dwie łazienki – jedna z wanną, druga z kabiną prysznicową, obie z oknem zapewniającym naturalne doświetlenie.


Dwie sypialnie zlokalizowane są od strony patio – większa od zachodu, mniejsza od północy. Takie usytuowanie gwarantuje spokój i ciszę.


Mieszkanie jest częściowo umeblowane – istnieje możliwość zarówno domeblowania, jak i usunięcia aktualnego wyposażenia, w zależności od potrzeb najemcy.


Opłaty za media - według zużycia.


Uwaga: lokal nie posiada miejsca parkingowego.


Ulica Wiejska to jedno z najbardziej prestiżowych miejsc w centrum miasta.


W okolicy znajdują się liczne restauracje, kawiarnie, sklepy i punkty usługowe, a także parki i tereny spacerowe, które pozwalają odpocząć od miejskiego zgiełku.


To idealne miejsce dla osób ceniących elegancki miejski styl życia, z dostępem do natury i kultury w zasięgu krótkiego spaceru.

Martyna
Zadzwoń do oferenta
Zadzwoń do oferenta: +48 533 325 220
Ogłoszeniodawca nie zgadza się na kontakt agencji nieruchomości.
Powiedz, że znalazłaś/eś ofertę na Bezposrednie.com. Dziękujemy.
Wyślij wiadomość do oferenta
Wyślij wiadomość do oferenta

Zgadzam się też na otrzymanie:

reklama