Mieszkanie do wynajęcia, woj. mazowieckie / dodano: 17.02.2026
Sarmacka, mazowieckie, Warszawa, Wilanów
Cena: 12 500 PLN  (78,13 PLN/m²)
Powierzchnia mieszkalna
160 m²
Czynsz dla adm.
2000 PLN
Liczba pokoi
5
Piętro
2
Liczba pięter
4
Forma własności
własność
Rok budowy
2005
Materiał budowlany
cegła
Winda
Tak
Czy zamknięty obiekt
Tak
Domofon
Tak
Balkon
Tak
Internet
Tak
Prąd
Tak
Woda
Tak
Recepcja
Tak
Numer oferty
gratka-46123647
Data aktualizacji
2026-02-19 23:52:47
Opis:

PRZESTRZENNE MIESZKANIE DLA RODZINY – 66 M2 SALON Z JADALNIĄ I 20 M2 LETNI TARAS POD DACHEM, RECEPCJA 24/7, WIDOK NA OŚ KRÓLEWSKĄ

Zielona panorama za oknem, w lecie plusk fontann | Dwustronne przewiewne latem – sypialnie od północy salon/taras od południa na patio | Częściowo umeblowane lub nieumeblowane


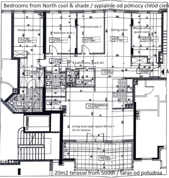
ROZKŁAD POMIESZCZEŃ:

* hol 6m / biuro domowe 14m2

* otwarta przestrzeń salon-kuchnia-jadalnia 66m2 wychodząca od południa na 20 m2 zadaszonego tarasu

* 1 WC dla gości 2m2

* 2 sypialnie dla dzieci 12+13m2

* 1 łazienka dla dzieci 4m2

* 1 sypialnia małżeńska z własną garderobą 31m2 i łazienką 8m2

* 2 pomieszczenia gospodarcze 3+5m2 z licznymi schowkami


STANDARD:

Kuchnia: woda filtrowana, lodówka, kuchnia elektryczna z piekarnikiem termicznym, piekarnik parowy, zmywarka

Szafy w holu i w sypialni małżeńskiej

Podłogi gres, parkiet dębowy

Internet światłowodowy


LOKALIZACJA:

Miasteczko Wilanów, z widokiem na aleję Oś Królewska. Sypialnie od północy – komfort w lecie. Salon/taras zadaszony od południa-zadrzewione patio. W okolicy szkoły, place zabaw, zakupy, usługi. Do tramwaju 5 min. piechotą


INFORMACJE DODATKOWE:

* Dodatkowo płatne opłaty licznikowe w tym internet

* Wymagana kaucja

* Czynsz administracyjny dodatkowo płatny ok. 4.000 zł

* Wymagany najem okazjonalny

* Osobno miejsca garażowe 300 zł za miejsce (możliwe do 3)

* Osobno 12m2 komórka lokatorska w podziemiu budynku 300zł

Kontakt bezpośredni


SPACEFUL FAMILY APARTMENT – 66 M2 LIVING/DINING ROOM + 20 M2 SUMMER TERRACE UNDER ROOF, 24/7 RECEPTION, VIEW ON THE ROYAL AXIS

Green panorama outside the window, splashing fountains in the summer | Double-sided, airy in the summer – bedrooms facing north, living area/terasse facing south on green patio | Partially furnished or unfurnished


ROOM LAYOUT:

* hall 6sqm / home office 14sqm

* open-plan living-kitchen-dinimg room 66sqm, south-facing onto a 20sqm covered terrace

* 1 guest toilet 2sqm

* 2 children’s bedrooms 12+13sqm

* 1 children’s bathroom 4sqm

* 1 master bedroom with its own dressing room 31sqm and bathroom 8 sqm

* 2 additional utility rooms 3+5sqm with numerous storage spaces


STANDARD:

Kitchen: filtered water, refrigerator, electric cooker with a thermal oven, steam oven, dishwasher

Wardrobes in the hall and master bedroom

Tile flooring, oak parquet

Fiber-optic internet


LOCATION:

Wilanów town, overlooking Oś Królewska aalley. Bedrooms face north – comfortable in summer. Covered living/terrace faces south – a tree-lined patio. Nearby: schools, playgrounds, shopping, and services. 5 minutes walk to tramway


ADDITIONAL INFORMATION:

* Additional utility bills, including internet, are payable

* Security deposit required

* Additional administrative fees of approximately PLN 4,000

* Occasional rental required

* Separately garage spaces: PLN 300 per space (up to 3 possible)

* Separately 12sqm storage unit on underground level PLN 300


Direct contact

JS
Zadzwoń do oferenta
Zadzwoń do oferenta: +48 22 898 33 00
Powiedz, że znalazłaś/eś ofertę na Bezposrednie.com. Dziękujemy.
Wyślij wiadomość do oferenta
Wyślij wiadomość do oferenta

Zgadzam się też na otrzymanie:

reklama