Dom na sprzedaż, woj. Polska / dodano: 29.12.2025
Danuty Siedzikówny "Inki", mazowieckie, piaseczyński, Piaseczno, Piaseczno
Cena: 2 050 000 PLN  (11 141,30 PLN/m²)
Powierzchnia mieszkalna
184 m²
Powierzchnia działki
700 m²
Liczba pokoi
6
Rok budowy
2025
Typ domu
wolnostojący
Materiał budowlany
cegła
Meble
Nie
Telefon
Tak
Internet
Tak
Prąd
Tak
Siła
Tak
Gaz
Tak
Woda
Tak
Numer oferty
gratka-45523613
Data aktualizacji
2026-01-13 02:00:12
Opis:

Sprzedam Nowoczesny dom w Piasecznie


Nowoczesny dom typu stodoła – Piaseczno, ul. Danuty Siedzikówny "Inki" | 184 m² | działka 700 m² | Cena : 2 050 000 złotych.


Na sprzedaż wyjątkowy dom wolnostojący w stylu nowoczesnej stodoły, położony w spokojnej i doskonale skomunikowanej części Piaseczna – przy ul. Danuty Siedzikówny "Inki".


To propozycja dla osób ceniących nowoczesną architekturę, przestrzeń i komfort życia blisko Warszawy.


PARAMETRY NIERUCHOMOŚCI


Powierzchnia domu: 184 m²


Powierzchnia działki: 700 m²


Garaż w bryle budynku: 27 m²


Dojazd: bezpośredni wjazd z ulicy asfaltowej, wykonany z kostki brukowej


Cena: 2 050 000 zł


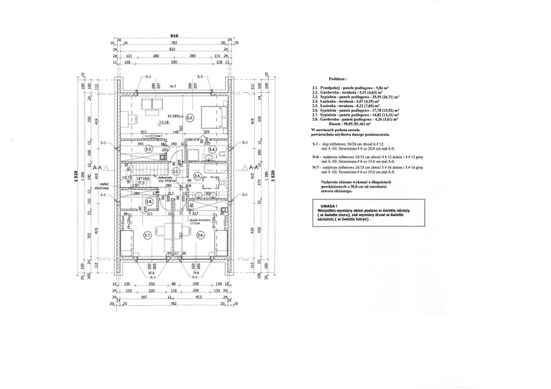
ROZKŁAD POMIESZCZEŃ


Parter:


Przestronny salon z jadalnią i dużymi przeszkleniami, w tym imponujące drzwi tarasowe HS podwójnie otwierane


Wyjście z salonu prowadzi na duży taras z deski kompozytowej, z którego znajduje się bezpośrednie zejście do ogrodu,


Nowoczesna, otwarta kuchnia ,


Łazienka,


Kotłownia,


Garaż w bryle budynku (27 m²).


Piętro:


Trzy komfortowe sypialnie,


Sypialnia główna z prywatną łazienką i garderobą,


Dodatkowa łazienka główna dla pozostałych pokoi.


Duże pomieszczenie typu strych ze składanymi schodami – idealne miejsce do przechowywania.


UDOGODNIENIA I SYSTEMY


Instalacja systemu alarmowego i kamer monitoringu,


Rekuperacja w całym domu,


Ogrzewanie podłogowe na parterze i piętrze,


Piec gazowy + zasobnik na wodę 150 l,


Taras z deski kompozytowej oraz podjazd z kostki brukowej


Funkcjonalny układ pomieszczeń i duże przeszklenia zapewniające doskonałe doświetlenie wnętrz.


Ocieplenie


Budynek ocieplony styropianem 20 cm grafit


Okna trzy szybowe w tym duże okno HS w salonie rozsuwane na dwie strony


Dach ocieplony Pianą PUR 25 cm wykończony stelażem aluminiowym oraz dwoma warstwami płyt karton gips Knauff akustyk do zapewnienia jeszcze lepszego komfortu dla mieszkańców.


LOKALIZACJA


Dom zlokalizowany na cichej i spokojnej ulicy z bardzo dobrym dojazdem do miasta blisko przedszkola i szkoły blisko do dworca PKP 3 min piechotą


Dom położony przy ul. Danuty Siedzikówny "Inki" w Piasecznie.


Świetnie skomunikowany punkt:


3 minuty do stacji PKP Piaseczno,


5 minut do trasy S7 (Warszawa – Kraków),


W pobliżu sklepy, szkoły, przedszkola, żłobeki oraz tereny rekreacyjne.


Spokojna okolica gwarantuje ciszę i prywatność, przy jednoczesnym szybkim dojeździe do centrum Warszawy.


To nowoczesny, komfortowy dom dla osób szukających wysokiej jakości, elegancji i wygody w doskonałej lokalizacji pod Warszawą.


Dom w stanie deweloperskim.


Kontakt przez olx lub


5O128O8O3;


5O128O97O


Zapraszamy do obejrzenia inwestycji. Sprzedaż bezpośrednia.

Marcin
Zadzwoń do oferenta
Zadzwoń do oferenta: +48 501 280 803
Powiedz, że znalazłaś/eś ofertę na Bezposrednie.com. Dziękujemy.
Wyślij wiadomość do oferenta
Wyślij wiadomość do oferenta

Zgadzam się też na otrzymanie:

reklama