Dom na sprzedaż, woj. mazowieckie / dodano: 14.02.2026
mazowieckie, Warszawa, Białołęka
Cena: 1 590 000 PLN  (11 922,62 PLN/m²)
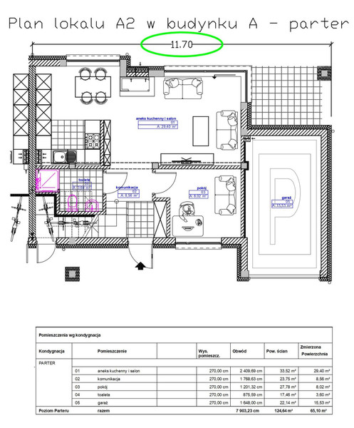
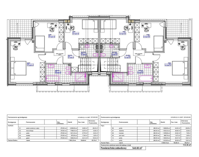
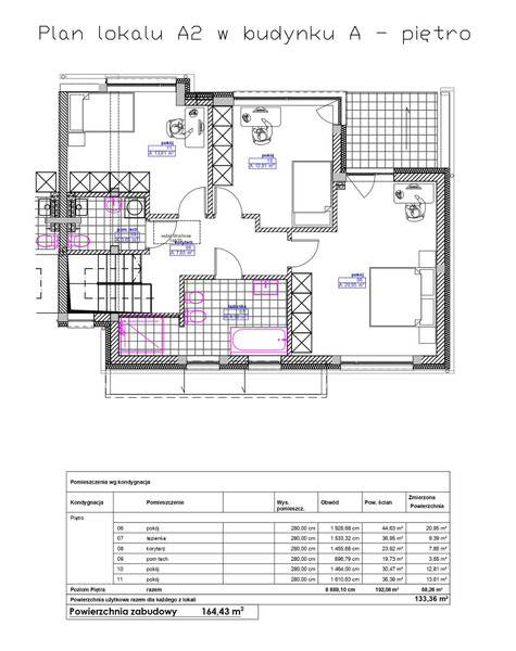
Powierzchnia mieszkalna
133,36 m²
Powierzchnia działki
280 m²
Liczba pokoi
5
Typ domu
inny
Numer oferty
gratka-46097393
Data aktualizacji
2026-03-01 02:09:00
Opis:

Bezpieczne miejsce na niespokojne czasy. W pięknej okolicy z możliwością bezkosztowej rezygnacji w trakcie umowy. Jeśli nabywca w trakcie budowy rozmyśli się, to bez podawania przyczyn może odstąpić od umowy. wtedy przysługuje mu 15% odsetek od wpłaconego kapitału. Inwestycja pod nadzorem DFG

Na sprzedaż jeden z czterech domów budowanych w leśnej enklawie przy ul Łąkowej w Warszawie - Choszczówka. Dom oznaczony na planie jako B1 o powierzchni użytkowej 133,36 m²,powierzchnia działki oferowanego domu to 287 + 25* m2. plus część wspólna Architektura łączy w sobie nowoczesne elementy z klasycznym stylem włoskim, a dzięki panoramicznym przeszkleniom wnętrze przenika się z otaczającą naturą. Tereny wokół osiedla mają status działek leśnych. UWAGA: Bardzo szeroki, prawie 12m dostęp do ogrodu z trzema wyjściami ! Istnieje możliwość zmiany aranżacji pomieszczeń zgodnie z indywidualnymi upodobaniami i nabywcy.

Kluczowe informacje:

  • Powierzchnia domu: 133,36 m²
  • Powierzchnia działek: od 236 m² do 387 m², w tym ogródek o pow. od 154 m² do 305 m²
  • Typ budynku: murowany, dach wielospadowy (ciemnooliwkowa blacha na rąbek))
  • Oddanie do użytku: II - III kw 2026 roku
  • Typ ogrzewania: gazowe, opcja pompy ciepła i instalacji fotowoltaicznej
  • Otoczenie: działki leśne, które zapewniają prywatność i brak przyszłej intensyfikacji zabudowy

Lokalizacja

Osiedle "Choszcza" znajduje się przy ul. Łąkowej, kilkaset metrów od ul. Mehoffera i Modlińskiej, co zapewnia wygodny dojazd do centrum Warszawy, a jednocześnie dostęp do natury i ciszy leśnych terenów.

Standard wykończenia:

  • Elewacja: w stylu włoskim, tynk mineralny, okładziny elewacyjne.
  • Tynki wewnętrzne: gipsowe, maszynowe, klasa III.
  • Podłogi: betonowa szlichta.
  • Okna i przeszklony front: wysokiej jakości, zapewniają doskonałe doświetlenie wnętrza.

Media i instalacje:

  • Woda: miejska, instalacja ciepłej, zimnej i ogrodowej wody.
  • Kanalizacja: miejska.
  • Gaz i energia elektryczna: podłączone do budynku.
  • Wentylacja: grawitacyjna oraz mechaniczna z wymiennikiem krzyżowym.
  • Światłowód: dostępny

Zagospodarowanie terenu:

  • Garaż: w bryle domu, automatyczna brama segmentowa (pow. 15,53 m²).
  • Teren przed domem: utwardzony kostką brukową.
  • Wiata śmietnikowa: zadaszona, dostępna z dwóch stron.
  • Ogrodzenie: posesja ogrodzona, brama wjazdowa automatyczna, furtka z domofonem.
  • Oświetlenie: indywidualne oświetlenie terenu.

Wnętrze domu:

  • Parter: przestronny salon z aneksem kuchennym, dodatkowy pokój do aranżacji na biuro lub pokój gościnny, możliwość dostosowania układu (np. wydzielenie garderoby lub połączenie z garażem).
  • Piętro: trzy sypialnie (z możliwością zmiany układu), duży salon łazienkowy z opcją stworzenia dodatkowej łazienki; pomieszczenie gospodarcze na pralkę, suszarkę i piec kondensacyjny.
  • Taras: zadaszony, możliwość zabudowy szklaną oranżerią.
  • Kominki: dwa kanały dymowe – do wewnętrznego kominka i zewnętrznego stanowiska grillowego.
  • Schowek na rowery i sprzęt ogrodowy: pod schodami, z osobnym wejściem z zewnątrz; powierzchnia nie jest wliczana do metrażu domu.

Bezpieczeństwo inwestycji

Dom objęty jest gwarancją Deweloperskiego Funduszu Gwarancyjnego (GFG), co zapewnia bezpieczeństwo transakcji dla nabywcy a płatności odbywają się za pośrednictwem Bankowego Rachunku Powierniczego.

Zapraszam do kontaktu w celu uzyskania szczegółowych informacji oraz do umówienia wizyty na terenie inwestycji.

Podana cena uwzględnia rabat 70 tyś. zł dotyczy lokalu B1. Rabat ten zostanie udzielony tylko jednemu nabywcy dowolnego z trzech lokali których ceny podano na stronie dewelopera.

Marek
Zadzwoń do oferenta
Zadzwoń do oferenta: +48 733 226 695
Powiedz, że znalazłaś/eś ofertę na Bezposrednie.com. Dziękujemy.
Wyślij wiadomość do oferenta
Wyślij wiadomość do oferenta

Zgadzam się też na otrzymanie:

reklama