Działka do wynajęcia, woj. Polska / dodano: 01.04.2026
Widłakowa, dolnośląskie, Wrocław
Cena: 10 000 PLN  (1,03 PLN/m²)
Powierzchnia działki
9742 m²
Typ domu
inny
Typ działki
inwestycyjna
Numer oferty
gratka-46455293
Data aktualizacji
2026-04-16 02:05:47
Opis:

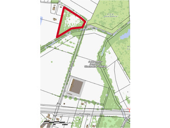
Oferuję do dzierżawy atrakcyjny grunt inwestycyjny, położony we Wrocławiu w bezpośrednim sąsiedztwie lotniska.


Lokalizacja:

ul. Widłakowa (w pobliżu nr 71), Wrocław – bardzo dobra komunikacja, blisko Portu Lotniczego oraz Autostradowej Obwodnicy Wrocławia.

Zaledwie ok. 2 minuty jazdy samochodem do lotniska.


Parametry nieruchomości:

  • powierzchnia: 9 742 m² (ok. 1 ha)
  • kształt: trapez
  • teren ogrodzony, nieutwardzony
  • dostępne media: woda, prąd, światłowód
  • dogodny dojazd - ok. 250 m do drogi asfaltowej


Przeznaczenie:

Teren oznaczony symbolem 6ZP/U2 – możliwość prowadzenia działalności gospodarczej (np. parking, magazyn, zaplecze logistyczne, usługi).

Piotr
Zadzwoń do oferenta
Zadzwoń do oferenta: +48 792 737 302
Ogłoszeniodawca nie zgadza się na kontakt agencji nieruchomości.
Powiedz, że znalazłaś/eś ofertę na Bezposrednie.com. Dziękujemy.
Wyślij wiadomość do oferenta
Wyślij wiadomość do oferenta

Zgadzam się też na otrzymanie:

reklama