Lokal gastronomiczny na sprzedaż, woj. mazowieckie / dodano: wczoraj
Aleja Komisji Edukacji Narodowej, mazowieckie, Warszawa, Ursynów
Cena: 11 000 PLN  (109,56 PLN/m²)
Powierzchnia
100,4 m²
Piętro
parter
Liczba pięter
8
Numer oferty
gratka-46150003
Data aktualizacji
2026-02-22 22:52:54
Opis:

Świetna lokalizacja | Gotowy do działania | Przestronne, funkcjonalne wnętrze

Do wynajęcia atrakcyjny lokal o powierzchni 100 m², położony w ciągu lokali usługowo-handlowych przy al. KEN na warszawskim Ursynowie – w bezpośrednim sąsiedztwie parku linearnego przy ul. Płaskowickiej.

To dobrze skomunikowana część dzielnicy z dużym ruchem pieszym i stałą bazą klientów.

Przed lokalem znajdują się ogólnodostępne miejsca postojowe, co stanowi duże udogodnienie zarówno dla gości, jak i dostawców.

Idealny pod gastronomię – bez konieczności dużych inwestycji

Lokal jest obecnie w pełni przystosowany i wyposażony do działalności gastronomicznej. Dla nowego najemcy oznacza to możliwość szybkiego rozpoczęcia działalności bez kosztownych i czasochłonnych prac adaptacyjnych. Istnieje możliwość przekazania w dzierżawę wyposażenia gastronomicznego znajdującego się w lokalu.

Oczywiście przestrzeń daje także potencjał do adaptacji pod handel lub usługi.

Funkcjonalny i przemyślany układ

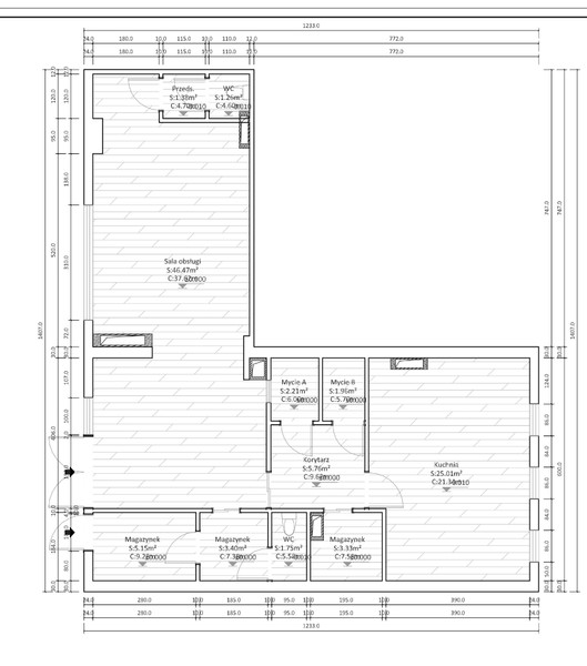
W obecnym podziale lokal składa się z:

  • przestronnej, dobrze doświetlonej sali dla gości – 46 m²
  • dużej, wygodnej kuchni – 25 m² (komfortowa przestrzeń robocza dla zespołu)
  • dwóch toalet (dla gości oraz personelu)
  • dwóch zmywalni (strefa brudna i czysta – zgodnie z wymogami sanitarnymi)
  • dwóch magazynków

Dużym atutem jest obszerne zaplecze, w tym funkcjonalna kuchnia, pozwalająca na sprawną organizację pracy nawet przy większym obłożeniu lokalu.

Komfort i infrastruktura

Lokal wyposażony jest w system wentylacji mechanicznej oraz klimatyzację w sali dla gości i kuchni

Właściciel dopuszcza możliwość zmiany aranżacji wnętrz przez najemcę (warunki do indywidualnego ustalenia).

Czynsz najmu: 11 000 zł netto / miesiąc

Dodatkowe koszty: media i opłaty ok. 1 500 zł/m-c (bez energii elektrycznej)

Kaucja: 3 x miesięczny czynsz + zaliczka na media

Dostępność: lokal dostępny od zaraz

To doskonała propozycja dla restauracji, kawiarni, bistro lub konceptu gastronomicznego szukającego dobrej lokalizacji i lokalu gotowego do rozpoczęcia działalności bez dużych nakładów inwestycyjnych.

Jakub Rembiewski
Zadzwoń do oferenta
Zadzwoń do oferenta: +48 502 641 474
Ogłoszeniodawca nie zgadza się na kontakt agencji nieruchomości.
Powiedz, że znalazłaś/eś ofertę na Bezposrednie.com. Dziękujemy.
Wyślij wiadomość do oferenta
Wyślij wiadomość do oferenta

Zgadzam się też na otrzymanie:

reklama