Mieszkanie na sprzedaż, woj. łódzkie / dodano: 16.03.2026
Maratońska, łódzkie, Łódź, Polesie, Retkinia
Cena: 646 400 PLN  (13 608,42 PLN/m²)
Powierzchnia mieszkalna
47,5 m²
Czynsz dla adm.
490 PLN
Liczba pokoi
2
Piętro
4
Liczba pięter
4
Rok budowy
2025
Typ domu
inny
Materiał budowlany
cegła
Meble
Tak
Winda
Tak
Czy zamknięty obiekt
Tak
Domofon
Tak
Balkon
Tak
Telefon
Tak
Internet
Tak
Prąd
Tak
Woda
Tak
Numer oferty
gratka-46311339
Data aktualizacji
2026-03-31 02:06:17
Opis:

Zamieszkaj w mieszkaniu, które będzie Twoim wymarzonym miejscem do życia. Na sprzedaż przytulne oraz eleganckie w pełni wykończone mieszkanie o powierzchni 48 m² położone przy ul. Maratońskiej 49 w Łodzi. Jest to nowoczesne i kameralne osiedle na Retkini /Polesie cieszące sie dużą popularności ze względu na położenie wsród zieleni oraz doskonałą komunikacje.


Atutem mieszkania to przede wszyskim cudownie doświetlone pomieszczenia , wszechstronność, jasne i przytulne wnętrza , duże przeszklenia oraz zastosowanie wysokiej jakości materiałów które otulają wnętrza . Mieszkanie zostało wykończone pod klucz a każdy detal został dopracowany ze szczególną starannością tak byś poczuł wrażenie luksusu i elegancji.


- Mieszkanie usytuowane na 4-tym, ostatnim piętrze skomunikowane cichą windą z widokiem na południowy zachód. Mieszkanie jasne i przyjemne o każdej porze dnia.

- Przestronny salon z aneksem kuchennym i wyjściem na duży balkon,

- Kuchnia w zabudowie, wyposażona w sprzęt AGD

- Ustawna i przestronna sypialnia z drugim balkonem.

- Elegancka łazienka z nowoczesną i ciepłą wanną.

- W pełni wyposażony salon wraz z TV , oświetlenie sterowane zdalnie lub z aplikacji.

-podwójny balkon wykończony gresem, stwórz swoją własną strefę relaksu

- Salon wraz z aneksem kuchennym który daje niesamowite wrażenie przestrzeni i swobody.

- Mieszkanie położone w okolicy parku , zieleni , siłowni na powietrzu, sklepów spożywczych.


Komunikacja:

- Szybki dojazd do centrum ze względu na bliskie położenie przystanku Maratońska – Dw.Łódź Retkinia.

- Krańcówka Autobusowa Retkinia – dostep do wielu lini tramwajowych oraz autobusowych.


Dodatkowo:

- schowki lokatorskie, hala garażowa, rowerownia, wózkownia.

- Stacja ładowania samochodów elektrycznych.

- Osiedle wyposażone w plac zabaw oraz zieleń.

- Miejsce postojowe w garażu podziemnym, dodatkowo płatne 36000 (obligatoryjne). Brama sterowana z pilota zarówno na osiedle oraz do garażu. Możliwość parkowania auta oraz motocykla.


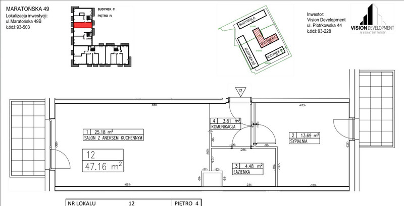
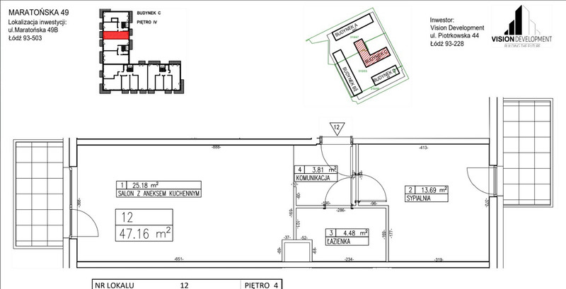
Pomieszczenia:

- Salon z aneksem kuchennym 25,18 m²,

- Łazienka 4.5 m²,

- Komunikacja 3.81 m²,

- Sypialnia 13.69 m²,

- Powierzchnia 1 balkonu : 5.21 m²,

- Powierzchnia 2 balkonu : 5.2 m².


Stan Prawny:

- Grunt uregulowany

- Możliwość zakupu na kredyt.

- Mieszkanie bez hipoteki, pełna własność.

Wybierz komfort i oszczędność czasu – odbierz mieszkanie gotowe do wprowadzenia się.

Serdecznie zapraszam, sprzedaż bez pośredników.

Michał Jaśniak

Michał
Zadzwoń do oferenta
Zadzwoń do oferenta: +48 516 614 294
Ogłoszeniodawca nie zgadza się na kontakt agencji nieruchomości.
Powiedz, że znalazłaś/eś ofertę na Bezposrednie.com. Dziękujemy.
Wyślij wiadomość do oferenta
Wyślij wiadomość do oferenta

Zgadzam się też na otrzymanie:

reklama