Mieszkanie na sprzedaż, woj. wielkopolskie / dodano: 31.03.2026
Starołęcka, wielkopolskie, Poznań, Nowe Miasto
Cena: 1 050 000 PLN  (14 673 PLN/m²)
Powierzchnia mieszkalna
71,56 m²
Liczba pokoi
4
Piętro
1
Liczba pięter
6
Typ domu
inny
Numer oferty
gratka-46446491
Data aktualizacji
2026-04-21 21:53:57
Opis:

NOWE MIESZKANIE WYKOŃCZONE POD KLUCZ

Inwestycja Widok Warta - ulica Starołęcka 34

  • Rodzinne mieszkanie 72m2 - 4pok
  • Gotowe pod klucz - do zamieszkania
  • Meble ruchome we własnym zakresie
  • Cicha strona osiedla i drzewa za oknami
  • 2 min pieszo na przystanek tramwajowy
  • Trasa nr 12 do Centrum i nr 13 nad Maltę
  • 10 min spacerem do Lasu Dębińskiego
  • Ścieżki rowerowe tuż przy inwestycji

FILM Z WNĘTRZA: youtube.com/shorts/zpUBzIFJRWE

---------------------------------------- -

SERDECZNIE ZAPRASZAM do zakupu wykończonego pod klucz mieszkania 4-pok znajdującego się w nowej inwestycji, tuż przy terenach nadwarciańskich, usytuowanego po cichej, zielonej stronie osiedla.

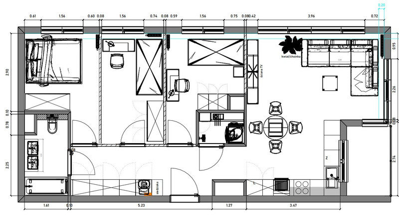
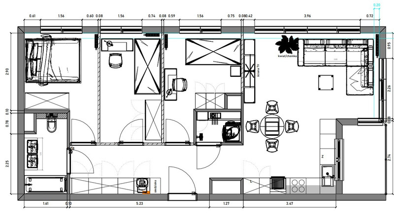
NIERUCHOMOŚĆ zlokalizowana jest w inwestycji Widok Warta etap 2, oddanej do użytkowania w wrześniu 2025. Powierzchnia użytkowa wynosi łącznie 71,66m2, na którą składają się 4 pokoje (salon i trzy sypialnie), korytarz, łazienka, pom. gospodarcze oraz kuchnia w aneksie. Otwarty układ przestrzeni od wejścia z doskonale nasłonecznioną częścią dzienną oraz dodatkową powierzchnią logi spełni oczekiwania rodziny poszukującej optymalnego metrażu z dobrze przemyślaną i funkcjonalną przestrzenią do życia. Niepodważalną zaletą nieruchomości jest jej położenie po cichej stronie osiedla, osłoniętej od ruchu ulicznego. Mieszkanie zostało wykończone pod klucz przez profesjonalną ekipę remontową z 10 letnim doświadczeniem. Zastosowano zabudowę w pełni stolarską, wysokiej klasy materiały wykończeniowe od sprawdzonych marek i lokalnych dostawców.

PODZIAŁ PRZESTRZENI

  • Część dzienna (26,09 m2) – salon z aneksem kuchennym + loggia
  • 3x Sypialnia (9,22, 9,28, 9,48 m2) – sypialnie małżeńska i dziecięce
  • Przedpokój (11,10 m2) – wyposażony w przestronną szafę w zabudowie
  • Łazienka (4,53 m2) – wyposażona w wannę, prysznic i dwie umywalki
  • Pom. gosp. (1,93 m2) - miejsce do przechowywania + pralnia i suszarnia

---------------------------------------- -

OSIEDLE Widok Warta etap 2 składa się łącznie z 154 mieszkań. Cały projekt zrealizowany został przez renomowanego ogólnopolskiego Dewelopera REDNET. Wyróżnia się na tle okolicy nowoczesną architekturą oraz położeniem w 2 linii zabudowy od ulicy Starołęckiej, co zapewnia cisze i spokój na co dzień z jednoczesną bliskością do komunikacji i punktów usługowych i handlowych.

LOKALIZACJA inwestycji odznacza się wieloma walorami. Położona w pobliżu rzeki Warty, daje możliwość obcowania na co dzień z malowniczym krajobrazem. Doskonale skomunikowana z centrum dzięki pobliskiej linii tramwajowej. Ponadto kilkaset metrów od osiedla, wzdłuż mostu kolejowego Starołęckiego pieszą ścieżką w 10 min możemy dostać się do pięknych terenów Lasu Dębińskiego oraz licznych ścieżek spacerowych/ rowerowych.

NOWA KOLEJ Do oferty załączona została mapka, która przedstawia przebieg nowej modernizowanej trasy kolejki miejskiej, która będzie kursowała wokół Poznania. Przystanek znajdować się będzie tuż przy inwestycji na Stacji Starołęka, co pozwoli mieszkańcom na dogodne kursowanie wokół całej aglomeracji miejskiej i podniesie wartość dzielnicy.

---------------------------------------- -

Wartość transakcji - 1.095.000,00 zł, w tym:

  • mieszkanie pod klucz - 1.050.000 zł
  • miejsce w hali garażowej - 45.000 zł

BEZ PROWIZJI - ZAKUP OD WŁAŚCICIELA

---------------------------------------- -

Serdecznie zapraszam do kontaktu :)

Pozdrawiam,

Michał Tryczyński

Michał
Zadzwoń do oferenta
Zadzwoń do oferenta: +48 536 073 243
Ogłoszeniodawca nie zgadza się na kontakt agencji nieruchomości.
Powiedz, że znalazłaś/eś ofertę na Bezposrednie.com. Dziękujemy.
Wyślij wiadomość do oferenta
Wyślij wiadomość do oferenta

Zgadzam się też na otrzymanie:

reklama