Mieszkanie na sprzedaż, woj. mazowieckie / dodano: 28.03.2026
Hoża, mazowieckie, Warszawa, Śródmieście
Cena: 1 850 000 PLN  (24 214,66 PLN/m²)
Powierzchnia mieszkalna
76,4 m²
Czynsz dla adm.
1332 PLN
Liczba pokoi
3
Piętro
2
Liczba pięter
4
Rok budowy
1992
Typ domu
inny
Materiał budowlany
beton
Meble
Nie
Winda
Tak
Czy zamknięty obiekt
Tak
Piwnica
Tak
Domofon
Tak
Balkon
Tak
Prąd
Tak
Woda
Tak
Numer oferty
gratka-46424385
Data aktualizacji
2026-04-12 02:05:58
Opis:

Sprzedam bezpośrednio atrakcyjne mieszkanie własnościowe o powierzchni użytkowej 76,4 m2 na zamkniętym, całodobowo strzeżonym osiedlu (Hoża 43/49, róg Poznańskiej) w samym centrum Warszawy.

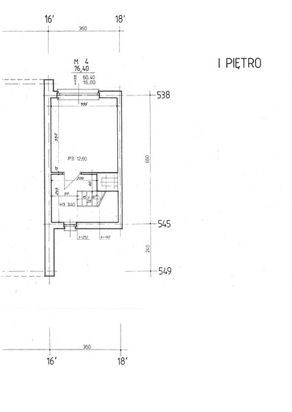
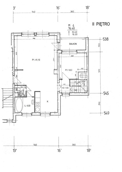
Drugie i pierwsze piętro w budynku 4-piętrowym, z windą na półpiętrze. Słoneczne, dwustronnie oświetlone, ustawne. Duży salon z widną wnęką kuchenną (41,1 m2), dwa pokoje (9,6 m2 i 12,6 m2), łazienka (4,5 m2), WC (1,4 m2). Dodatkowo balkon (4,5 m2, od strony południowej). Mieszkanie dwupoziomowe, większy z pokoi (12,6 m2) znajduje się poniżej pozostałych pomieszczeń (zejście po własnych drewnianych schodach).

Budynek zrealizowany w 1992 roku według projektu i pod nadzorem pracowników Politechniki Warszawskiej. Spółdzielnia nazywa się Idealne Mieszkanie-Centrum, bo taka od początku przyświeca jej ambicja: -mieszkaniowa/idealne-mieszkanie-pracownicza-spoldzielnia-mieszkaniowa,1371/.

Mieszkanie w dobrym stanie, do odświeżenia. Bogate możliwości rearanżacji wnętrza. W szczególności, na górnym piętrze można przekształcić salon w dwa pokoje, zastąpić wnękę kuchenną oddzielną widną kuchnią lub większą kuchnio-jadalnią oraz zmienić położenie łazienki. Na dolnym piętrze (obok większego pokoju) jest miejsce (około 6 m2) oraz instalacje wodno-kanalizacyjne umożliwiające zbudowanie dodatkowej kuchni lub łazienki i toalety.

Proszę o kontakt telefoniczny lub SMSem (.518 744 266 ), albo pocztą elektroniczną.

Ogłoszenie nie stanowi oferty w rozumieniu kodeksu cywilnego.

Jerzy
Zadzwoń do oferenta
Zadzwoń do oferenta: +48 518 744 266
Powiedz, że znalazłaś/eś ofertę na Bezposrednie.com. Dziękujemy.
Wyślij wiadomość do oferenta
Wyślij wiadomość do oferenta

Zgadzam się też na otrzymanie:

reklama