Lokal do wynajęcia, woj. Polska / dodano: 25.09.2025
Marszałkowska, mazowieckie, Warszawa
Cena: 13 000 PLN  (85,66 PLN/m²)
Powierzchnia
151,76 m²
Piętro
parter
Liczba pięter
16
Typ domu
inny
Numer oferty
gratka-44131149
Data aktualizacji
2026-03-27 07:31:55
Opis:

NAJEM LOKALU UŻYTKOWEGO PRZY UL. MARSZAŁKOWSKIEJ 111A W WARSZAWIE

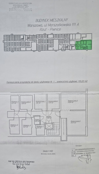
Spółdzielnia Mieszkaniowa "Żelazna Brama" (pl. Mirowski 14, 00-138 Warszawa; tel. Skontaktuj się, wynajmie w drodze pisemnego przetargu nieograniczonego lokal użytkowy nr U1 o powierzchni użytkowej 151,76 m2 usytuowany na parterze budynku przy ul. Marszałkowskiej 111A w Warszawie, do którego przynależy piwnica o pow. 101,02 m2.Lokal znajduje się przy ul. Marszałkowskiej na odcinku pomiędzy ul. Królewską a pl. Bankowym. W bliskim sąsiedztwie lokalu znajdują się przystanki autobusowe i tramwajowe oraz 1 i 2 linia metra, Hala Mirowska oraz liczne punkty handlowe i usługowe.

Ważne informacje:

  • lokal będzie dostępny od dnia 01.12.2025 r.
  • czynsz nie obejmuje następujących opłat przypadających na lokal: kosztów mediów, podatku od nieruchomości, opłaty przekształceniowej oraz opłaty za szyld reklamowy mocowany do elewacji nad witryną lokalu;
  • lokal wyposażony jest w centralne ogrzewanie, energię elektryczną, ciepłą i zimną wodę, kanalizację. Istnieje możliwość podłączenia linii telefonicznej oraz łącza internetowego. W załączeniu rzut i zdjęcia lokalu;
  • szczegółowych wiadomości dotyczących przetargu i najmowanego lokalu można uzyskać kontaktując się bezpośrednio ze Spółdzielnią;
  • lokal można obejrzeć po umówieniu terminu ze Spółdzielnią;
  • Spółdzielnia nie wyraża zgody na prowadzenie w lokalu działalności gospodarczej uciążliwej dla mieszkańców;
  • warunkiem podpisania umowy najmu jest wpłata kaucji stanowiącej równowartość dwukrotności czynszu brutto;
  • złożona oferta nie podlega zwrotowi;



Spółdzielnia Mieszkaniowa Żelazna Brama
Zadzwoń do oferenta
Zadzwoń do oferenta: +48 22 620 06 16
Ogłoszeniodawca nie zgadza się na kontakt agencji nieruchomości.
Powiedz, że znalazłaś/eś ofertę na Bezposrednie.com. Dziękujemy.
Wyślij wiadomość do oferenta
Wyślij wiadomość do oferenta

Zgadzam się też na otrzymanie:

reklama