Magazyn na sprzedaż, woj. Polska / dodano: 05.02.2026
Lubelska, warmińsko-mazurskie, Olsztyn
Cena: 6864 PLN  (22 PLN/m²)
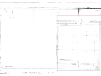
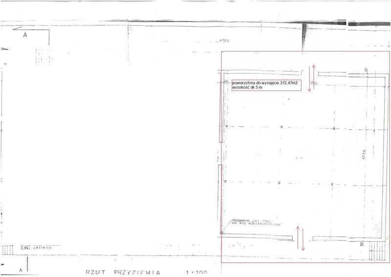
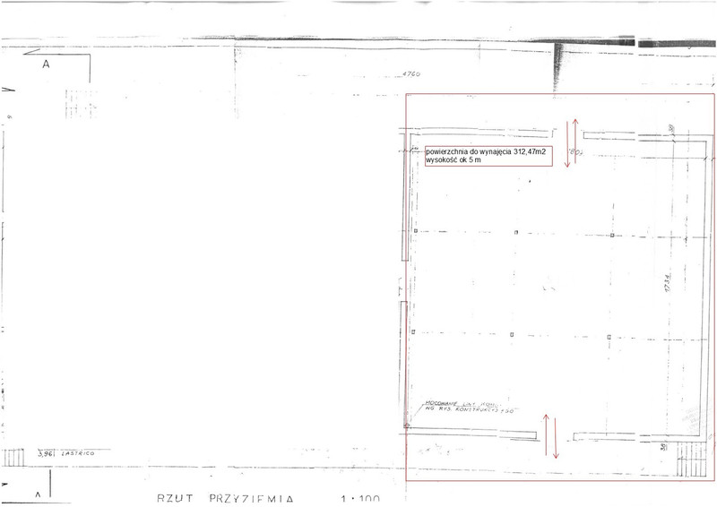
Powierzchnia
312 m²
Piętro
parter
Prąd
Tak
Numer oferty
gratka-45984941
Data aktualizacji
2026-02-20 02:03:39
Opis:

Do wynajęcia Hala magazynowo produkcyjna o powierzchni 312 m2, położona w przemysłowej dzielnicy Olsztyna, przy ul. Lubelskiej. (wjazd vis a vis Makro)

Obecnie znajduję się tu stolarnia.

Hala wolna od 01.03.2026 r.

Magazyn z rampą rozładunkowo – załadunkową dostosowaną do wysokości pojazdów ciężarowych.(wysokość rampy 110 cm) rampa jest z obu stron magazynu (zaznaczono dwa wejścia/wyjścia na rzucie hali 2D). Duży plac manewrowy.

Media- prąd, oddzielny licznik. (niskie koszty energii elektrycznej)

Istnieje możliwość podłączenia systemu alarmowego oraz systemu kamer.

Hala nieogrzewana, solidna murowana konstrukcja magazynu, możliwość dostosowania do własnych potrzeb grzewczych. (stolarnia wykonała własne ogrzewanie wodne). Jest możliwość odkupienia pieca.

Hala ma przestrzeń otwartą, do własnej aranżacji..

Istnieje również możliwość doprowadzenia wody, kanalizacji oraz siły. Są to dodatkowe koszty ponoszone przez najemcę. Oczywiście szczegóły techniczne i kosztowe do omówienia.

W przyszłości jest możliwość wynajęcia pozostałych pomieszczeń wraz z zapleczem biurowym (275m2+108m2) wyposażonym w wszystkie media.

Atuty:

- doskonała lokalizacja, ul. Lubelska, blisko dworca PKP i PKS oraz Urzędu Celnego,

- niezależny wjazd,

- dogodny dojazd samochodów osobowych i ciężarowych,

- duży plac manewrowy,

- hala jasna, dobrze doświetlona, wysokość ok 5 m.

CENA: 22.00 netto/ m2 + VAT 23% - do negocjacji

Stawka czynszu jest automatycznie rewaloryzacja o coroczny wskaźnik GUS.

Jeżeli jesteś zainteresowany tą nieruchomością zapraszam do kontaktu. Odpowiem na wszelkie pytania i udzielę szczegółowych informacji.

seba
Zadzwoń do oferenta
Zadzwoń do oferenta: +48 661 551 715
Ogłoszeniodawca nie zgadza się na kontakt agencji nieruchomości.
Powiedz, że znalazłaś/eś ofertę na Bezposrednie.com. Dziękujemy.
Wyślij wiadomość do oferenta
Wyślij wiadomość do oferenta

Zgadzam się też na otrzymanie:

reklama