Mieszkanie na sprzedaż, woj. mazowieckie / dodano: 08.03.2026
Jana Żabińskiego, mazowieckie, Warszawa, Ursynów
Cena: 750 000 PLN  (14 231,50 PLN/m²)
Powierzchnia mieszkalna
52,7 m²
Liczba pokoi
2
Piętro
3
Liczba pięter
3
Typ domu
inny
Numer oferty
gratka-46253383
Data aktualizacji
2026-03-23 02:01:45
Opis:

Sprzedam bezpośrednio 2-pokojowe, słoneczne mieszkanie własnościowe w cichej i zielonej części Ursynowa, tuż przy metrze Natolin (240 metrów – 4 minuty piechotą).

CENA: 750 000 zł 14 231 zł/m²

Cena do negocjacji.

Mieszkanie 52,7 m2 plus duży balkon/taras z widokiem na rozległy sad. Mieszkanie dobrze rozplanowane i ciche jest usytuowane w drugiej linii zabudowań, z dostępem do miejsc postojowych obok bloku oraz dużego publicznego parkingu.

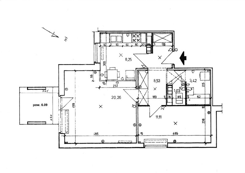
Składa się z:

  • widnej kuchni (8,25 m2),
  • cichej sypialni (11,11 m2) z oknami wychodzącymi na wschód,
  • przedpokoju (8,53 m2), gdzie znajdują się dwie duże szafy wnękowe,
  • 6-metrowej łazienki z wanną,
  • salonu (20,26 m2) z dużymi oknami wychodzącymi na południe.
  • Z salonu wyjście na balkon (6,09 m2), z którego jest przepiękny widok na zieleń.


Grunty uregulowane, księga wieczysta, odrębna własność lokalu.

Do mieszkania przynależy piwnica (5,4 m2).

Mieszkanie mieści się na ostatnim, III piętrze bez windy. Na każdym poziomie budynku w klatce jedynie trzy mieszkania. Klatka schodowa czysta, po remoncie, wymienione są wszystkie okna. Domofon. Budynek ocieplony. Blok z 1987 roku. W najbliższych planach spółdzielni (2026 rok) jest remont balkonów.

W mieszkaniu wymieniono wszystkie piony instalacyjne oraz okna. W sypialni i łazience wymieniono instalację elektryczną. W salonie, sypialni i częściowo w przedpokoju na podłodze jest parkiet, w kuchni wykładzina, w łazience płytki z glazury.


Do użytkowania, wspólne dla mieszkańców tej klatki, są dwa duże pomieszczenia gospodarcze. Bardzo zielona uliczka osiedlowa Jana Żabińskiego oraz sąsiadujący z nią sadek natoliński są oświetlone parkowymi latarniami.

Miesięczny czynsz w spółdzielni Wyżyny ok 1100 zł.

W okolicy trzy urocze małe parki idealne na spacery oraz dwa ogromne parki - Las Kabacki (wejście do Lasu Kabackiego w odległości 1,5 km) oraz Wilanów połączony z Powsinkiem idealny na weekendowe wypady rowerowe, biegówki czy nordic walking z możliwością dotarcia aż do Wisły, z cudownymi rezerwatami przyrody. Natolin posiada swój Dom Kultury. W pobliżu dostępna jest także Galeria Ursynów z licznymi sklepami i butikami. W pobliżu również trzy duże supermarkety Netto, Biedronka i Lidl, banki, apteki.


W najbliższej okolicy nowoczesne Ursynowskie Centrum Kultury oferujące liczne koncerty, wystawy i spektakle. Niedaleko SGGW z ogólnodostępną ofertą pływalni i jacuzzi. Na Imielinie lodowisko. Pływalnia i spa znajduje się także na Kabatach.


W pobliżu publiczne i niepubliczne szkoły podstawowe i średnie. Urząd Miasta Dzielnicy Ursynów w odległości jednej stacji metra (Metro Imielin), gdzie można załatwić wszelkie formalności mieszkańca Warszawy. W pobliżu również przychodnie lekarskie oraz Warszawski Szpital Południowy.

17-minutowy dojazd metrem do stacji Centrum daje dostęp do wszelkich atrakcji Warszawy.

Lotnisko im. F. Chopina dostępne transportem publicznym (autobus 148 z Metro Imielin), samochodem 11 minut.

Bardzo łatwy wyjazd na południową obwodnicę Warszawy.

CENA: 750 000 zł 14 231 zł/m²

Cena do negocjacji.

Video: -YCeTUNM


Agencjom i Biurom Nieruchomości dziękuję.

Aleksandra
Zadzwoń do oferenta
Zadzwoń do oferenta: +48 514 895 959
Ogłoszeniodawca nie zgadza się na kontakt agencji nieruchomości.
Powiedz, że znalazłaś/eś ofertę na Bezposrednie.com. Dziękujemy.
Wyślij wiadomość do oferenta
Wyślij wiadomość do oferenta

Zgadzam się też na otrzymanie:

reklama