Mieszkanie do wynajęcia, woj. małopolskie / dodano: 18.01.2026
Lubelska, małopolskie, Kraków, Krowodrza
Cena: 4200 PLN  (61,76 PLN/m²)
Powierzchnia mieszkalna
68 m²
Czynsz dla adm.
800 PLN
Liczba pokoi
3
Piętro
2
Liczba pięter
4
Materiał budowlany
beton
Winda
Tak
Domofon
Tak
Internet
Tak
Prąd
Tak
Woda
Tak
Numer oferty
gratka-45757661
Data aktualizacji
2026-02-02 02:07:29
Opis:

Mamy do wynajęcia unikalny, dwupoziomowy loft w samym centrum Krakowa – stworzony w pofabrycznym budynku Telekomu. To mieszkanie bardzo funkcjonalnym układzie, z niepowtarzalnym klimatem i wysokim standardem wykończenia.

LOKALIZACJA:

Mieszkanie znajduje się przy ul. Lubelskiej, dzielnica Krowodrza. Miejsce doskonale skomunikowane, blisko Nowego Kleparza (piechotą 3 minuty). Do rynku Głównego dostaniemy się piechotą w 10-15minut. W okolicy znajduje się wiele lokali handlowo-usługowych, doskonały dostęp do kawiarni, restauracji i kultury miasta.

OPIS MIESZKANIA:

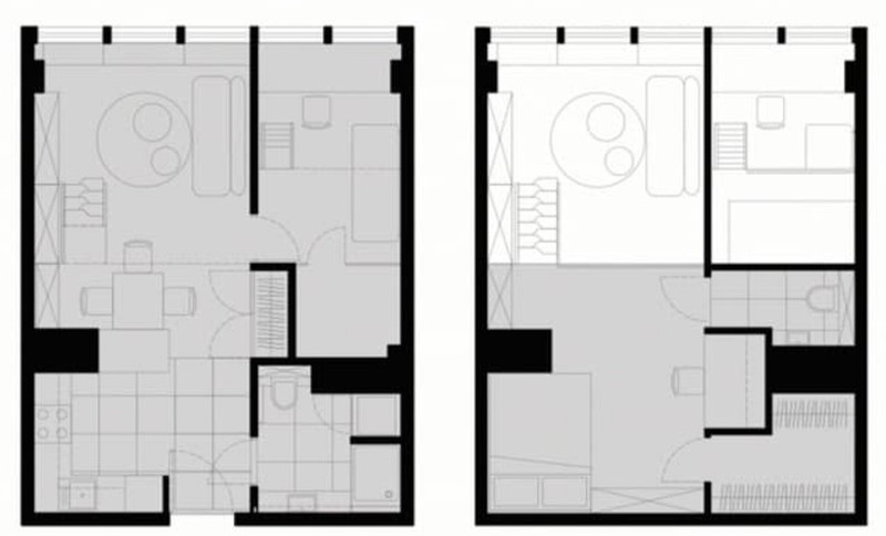
Mieszkanie to dwupoziomowa przestrzeń z dużymi oknami która ma łącznie 68m2. Posiada dwie antresole.

  • Układ: Na dolnym poziomie znajduje się kuchnia, łazienka, salon, pokój z drugą, mniejszą antresolą i pomieszczenie gospodarcze. Na górnym poziomie znajduje się sypialnia, druga łazienka, miejsce do pracy i garderoba.
  • Wyposażenie: zabudowa na wymiar ( w tym wysoki, dwupoziomowy regał), wygodne miejsce do czytania przy oknie, w pełni wyposażona kuchnia, klimatyzacja, pojemne szafy i schowki.

Kogo szukamy?

Szukamy spokojnej osoby lub maksymalnie dwóch dorosłych osób, które docenią niepowtarzalny charakter tego miejsca i będą dbać o wnętrze.

Ogłoszenie kierujemy do osób niepalących, nie posiadających zwierząt. Oferta NIE JEST skierowana do studentów ani rodzin z dziećmi. Jesteśmy zainteresowani najmem bez pośredników. Najem wyłącznie długoterminowy.

Dodatkowe informacje:

Preferujemy podpisanie umowy notarialnie w formie najmu okazjonalnego – z oświadczeniem najemcy o wskazaniu lokalu zastępczego oraz notarialnym zobowiązaniem do opuszczenia mieszkania po zakończeniu umowy.


Jeśli cenisz wyjątkowe wnętrza, marzysz o wysokich sufitach i klimacie autentycznego loftu, to miejsce jest dla Ciebie!


Opłata 4200zł + 800zł czynszu.

Maciej
Zadzwoń do oferenta
Zadzwoń do oferenta: +48 697 932 837
Powiedz, że znalazłaś/eś ofertę na Bezposrednie.com. Dziękujemy.
Wyślij wiadomość do oferenta
Wyślij wiadomość do oferenta

Zgadzam się też na otrzymanie:

reklama