Dom na sprzedaż, woj. Polska / dodano: 12.02.2026
mazowieckie, Warszawa
Cena: 350 000 PLN  (2430,56 PLN/m²)
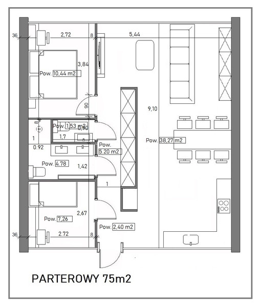
Powierzchnia mieszkalna
144 m²
Powierzchnia działki
0 m²
Liczba pokoi
3
Typ domu
inny
Numer oferty
gratka-46073159
Data aktualizacji
2026-03-14 09:27:04
Opis:

Oferujemy budowę nowoczesnego domu jednorodzinnego o powierzchni 144m2 na działce inwestora.

To idealne rozwiązanie dla osób, które posiadają grunt i chcą szybko bez stresu wybudować własny dom w technologii żelbetowej.


Cena domu marzec-kwiecień 26;

Stan deweloperski z pompą ciepła Stiebel Eltron LVZ 8 premium z rekuperacją ( bez garażu) 600 tys zł

Możliwość wyboru tańszej wersji budowy konstrukcji domu bez wewnętrznych ścian działowych oraz instalacji w cenie 350 tys zł


Realizujemy inwestycje na terenie całej Polski.


Zapraszam zainteresowane osoby do kontaktu.


Niniejsze ogłoszenie/informacja handlowa ma charakter wyłącznie informacyjny i nie stanowi oferty handlowej w rozumieniu Art. 66 § 1 Kodeksu Cywilnego (Dz.U. 1964 nr 16 poz. 93 z późn.

Tomasz
Zadzwoń do oferenta
Zadzwoń do oferenta: +48 501 661 850
Ogłoszeniodawca nie zgadza się na kontakt agencji nieruchomości.
Powiedz, że znalazłaś/eś ofertę na Bezposrednie.com. Dziękujemy.
Wyślij wiadomość do oferenta
Wyślij wiadomość do oferenta

Zgadzam się też na otrzymanie:

reklama