Mieszkanie na sprzedaż, woj. Polska / dodano: 01.03.2026
Józefa Chełmońskiego, łódzkie, Łódź
Cena: 388 000 PLN  (8981,48 PLN/m²)
Powierzchnia mieszkalna
43,2 m²
Liczba pokoi
2
Piętro
7
Liczba pięter
10
Typ domu
inny
Numer oferty
gratka-46198585
Data aktualizacji
2026-03-16 02:04:21
Opis:

Cena: 388 000 zł

Jeśli szukasz mieszkania, do którego można się wprowadzić od razu lub pod inwestycję, to ta oferta zdecydowanie zasługuje na uwagę.

Mieszkanie znajduje się na 7. piętrze w zadbanym wieżowcu z windą, na spokojnym osiedlu im. J. Chełmońskiego (rejon Dąbrowskiego / Kilińskiego). Lokal przeszedł generalny remont w 2021 roku, wszystko jest spójne, funkcjonalne i po prostu wygodne w codziennym użytkowaniu.

Najważniejsze informacje:

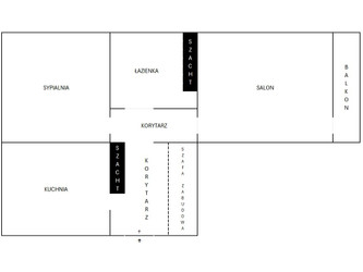
  • Powierzchnia: 43,2 m²
  • Pełen rozkład – osobno salon, sypialnia, kuchnia i łazienka
  • Balkon z widokiem na zieleń
  • 7. piętro / winda
  • Wszystkie media miejskie

Wnętrze:

  • Korytarz z dużą szafą robioną na wymiar + dodatkowa szafa wolnostojąca
  • Kuchnia w pełni umeblowana i wyposażona: lodówko-zamrażarka, zmywarka, płyta ceramiczna, piekarnik, mikrofalówka.
  • Nowoczesna łazienka: prysznic, pralka, toaleta, pisuar, umywalka, lustro 3D

Lokalizacja – jeden z mocniejszych punktów:

  • Świetny i szybki dojazd do centrum
  • Lidl i Biedronka – ok. 400 m, Kaufland – 900 m
  • Park Dąbrowskiego i Orlik – ok. 800 m
  • Bardzo dobry wyjazd z miasta w każdym kierunku

Mieszkanie idealne zarówno do zamieszkania, jak i pod inwestycję – układ, standard i lokalizacja sprawiają, że zawsze będzie atrakcyjne na rynku.

Zainteresowanych zapraszam do bezpośredniego kontaktu.

Grzegorz
Zadzwoń do oferenta
Zadzwoń do oferenta: +48 883 714 174
Ogłoszeniodawca nie zgadza się na kontakt agencji nieruchomości.
Powiedz, że znalazłaś/eś ofertę na Bezposrednie.com. Dziękujemy.
Wyślij wiadomość do oferenta
Wyślij wiadomość do oferenta

Zgadzam się też na otrzymanie:

reklama