Mieszkanie na sprzedaż, woj. Polska / dodano: 28.03.2026
Miechowicka, śląskie, Chorzów
Cena: 450 000 PLN  (9103,78 PLN/m²)
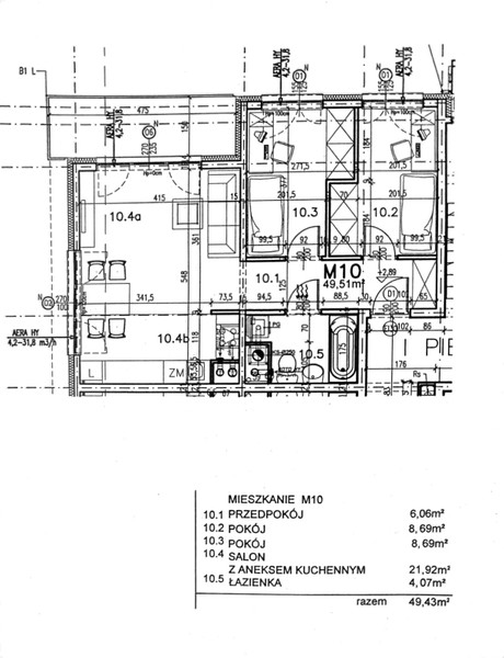
Powierzchnia mieszkalna
49,43 m²
Liczba pokoi
3
Piętro
1
Liczba pięter
6
Rok budowy
2013
Typ domu
inny
Materiał budowlany
beton
Meble
Tak
Winda
Tak
Czy zamknięty obiekt
Tak
Piwnica
Tak
Domofon
Tak
Balkon
Tak
Prąd
Tak
Gaz
Tak
Woda
Tak
Numer oferty
gratka-46426833
Data aktualizacji
2026-04-12 02:18:12
Opis:

Oferuję na sprzedaż 3-pokojowe mieszkanie o powierzchni 49,43 m², znajdujące się na 1 piętrze w bloku z 2013 roku. Mieszkanie jest w dobrym stanie, gotowe do zamieszkania. W jego skład wchodzą:


salon z aneksem kuchennym

sypialnia

pokój dziecięcy

łazienka

balkon

miejsce parkingowe

duża piwnica - 6,5m2.

dodatkowo w piwnicy jest rowerownia w której do mieszkania przynależą dwa stanowiska rowerowe (dodatkowo można wstawić więcej rowerów).

Wszystkie pomieszczenia są w pełni umeblowane i wyposażone w sprzęt AGD, w tym pralkę, zmywarkę oraz lodówkę. Budynek dysponuje windą oraz systemem zabezpieczeń.


Lokalizacja w Chorzowie II zapewnia bliskość do licznych atrakcji:


Muzeum Hutnictwa

Teatr Rozrywki

Park Śląski

Park Amelung

Park Skałka

Usytuowanie bloku jest niewątpliwie atutem tego mieszkania. Pozwala na szybki dojazd do DTŚ - ok. 5 min., skąd bardzo szybko można dojechać samochodem do Katowic czy w kierunku Gliwic. Jednocześnie położenie gwarantuje szybki dojazd w kierunku Bytomia oraz innych ościennych miast. W niewielkiej odległości znajdują się przystanki autobusowe oraz tramwajowe (ok. 4 min na pieszo) , umożliwiające bezproblemowy dojazd np. do Katowic. Blok znajduje się na zamkniętym dozorowanym terenie, w cichej i spokojnej okolicy.


W okolicy znajdują się również sklepy (Biedronka 5 min na pieszo) restauracje oraz szkoły i przedszkola.


Do mieszkania przynależy miejsce parkingowe widoczne bezpośrednio z balkonu mieszkania. Sam parking jest zamykany oraz monitorowany.


Czynsz to obecnie 620 pln na 3 osoby z zaliczką na wodę, śmieci oraz fundusz remontowy a także eksploatację części wspólnych. Ogrzewanie średni koszt w ciągu roku wraz z c.w.u. to ok 250-300 pln/m-c.


Mieszkanie ogrzewane jest piecem gazowym dwufunkcyjnym, z możliwością sterowania temperaturą poprzez sterownik w przedpokoju. Koszty ogrzewania nie są wysokie a system ogrzewania umożliwia ogrzewanie mieszkania niezależnie od pory roku.


W mieszkaniu przesunięto ścianę działową pomiędzy pokojem dziecięcym a sypialnią, uzyskując tym samym więcej miejsca w sypialni która obustronnie zabudowana jest szafą.


Mieszkanie jest w pełni umeblowane, meble w każdym pomieszczeniu wykonywane były pod wymiar, na zamówienie.


Mieszkanie sprzedawane bez pośredników. Wymagany jest zadatek w wysokości 3% ceny mieszkania przy podpisaniu umowy przedwstępnej.

Paweł
Zadzwoń do oferenta
Zadzwoń do oferenta: +48 512 198 182
Ogłoszeniodawca nie zgadza się na kontakt agencji nieruchomości.
Powiedz, że znalazłaś/eś ofertę na Bezposrednie.com. Dziękujemy.
Wyślij wiadomość do oferenta
Wyślij wiadomość do oferenta

Zgadzam się też na otrzymanie:

reklama