Biuro do wynajęcia, woj. Polska / dodano: 11.03.2026
Stefana Żeromskiego, łódzkie, Łódź
Cena: 68 PLN  (0,34 PLN/m²)
Powierzchnia
200 m²
Liczba pomieszczeń
4
Piętro
2
Liczba pięter
4
Typ domu
inny
Numer oferty
gratka-46279179
Data aktualizacji
2026-03-26 02:02:52
Opis:

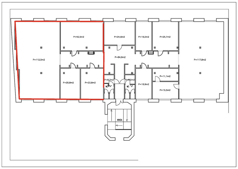
Do wynajęcia całość powierzchni biurowej o metrażu 200 m² zlokalizowanej w Łodzi, na 2 piętrze w 4-kondygnacyjnym budynku (lewa strona). Lokal składa się z 4 funkcjonalnych pomieszczeń.

Do dyspozycji najemcy: aneks kuchenny, ciągi komunikacyjne, wspólna toaleta

Cena: 67,65 zł/m² brutto Koszt najmu całości: to 13 530,00 zł brutto / miesiąc

Media dodatkowo płatne: energia, ogrzewanie, woda, śmieci, ochrona (rozliczane wg zużycia / m²).

Woda: 10 zł / osoba.

Parking: 184,5 zł brutto / miesiąc za 1 miejsce.

Obiekt monitorowany, dostęp 24/7.

Powierzchnia idealna na biuro, firmę usługową, siedzibę przedsiębiorstwa lub działalność administracyjną.

Kontakt telefoniczny — zapraszam do umówienia prezentacji.

MSM Wilman Sp. J.
Zadzwoń do oferenta
Zadzwoń do oferenta: +48 502 631 452
Ogłoszeniodawca nie zgadza się na kontakt agencji nieruchomości.
Powiedz, że znalazłaś/eś ofertę na Bezposrednie.com. Dziękujemy.
Wyślij wiadomość do oferenta
Wyślij wiadomość do oferenta

Zgadzam się też na otrzymanie:

reklama